
STRECKER-OLENYI Industrie- & Gewerbeimmobilien
Herr Arno Strecker
072 ···
Nr. anzeigenPreise & Kosten
Provision für Käufer
3,57 %
Lage
Die Gewerbefläche befindet sich in Durlach, einem etablierten und belebten Stadtteil von Karlsruhe mit einer guten Durchmischung aus Wohn- und Geschäftsnutzung. In unmittelbarer Umgebung befinden sich zahlreiche Einkaufsmöglichkeiten, Arztpraxen, gastronomische Betriebe und Dienstleister - ideale Voraussetzungen für eine hohe...
Die Ladenfläche
Baujahr
1968
Energie & Heizung
Warum sehe ich diese Anzeige? – Du siehst diese Anzeige basierend auf Ihrer Navigation auf unserer Website und den Suchkriterien, die du verwendet hast.
Energieausweistyp
Verbrauchsausweis
Gebäudetyp
Nicht-Wohngebäude
Baujahr laut Energieausweis
1968
Wesentliche Energieträger
Fernwärme
Gültigkeit
16.08.2023 bis 15.08.2033
Weitere Energiedaten
Energieträger
Fernwärme
Heizungsart
Zentralheizung
Details
Objektbeschreibung
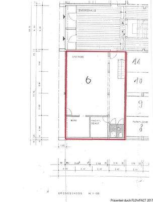
Zum Verkauf steht eine vielseitig nutzbare Gewerbefläche mit einer Gesamtgröße von ca. 194,5 m², verteilt auf das Erdgeschoss und das Untergeschoss. Die Fläche wurde über viele Jahre als Apotheke genutzt und eignet sich ideal für eine Weiterführung im Gesundheitswesen oder für alternative gewerbliche Nutzungen wie...
Ausstattung
- Große Schaufensterfront mit guter Sichtbarkeit
- Helle Verkaufsfläche im Erdgeschoss
- Fliesenboden im Erdgeschoss - pflegeleicht
- Nutzbarer Kellerbereich - ideal als Lager oder Personalräume
- Innenliegende Treppe
- Öffentliche Parkplätze direkt vor dem Gebäude
- EDV - Verkabelung
- Klimatisierung...
Weitere Informationen
Sonstiges
Baujahr: 1968
Heizungsart: Zentralheizung
Befeuerung/Energieträger: Fernwärme
Energieausweistyp: Verbrauchsausweis
Energieeffizienzklasse: E
Stichworte
Nutzfläche: 194,50 m², Gesamtfläche: 194,50 m²
Anbieter der Immobilie
STRECKER-OLENYI Industrie- & Gewerbeimmobilien
An der Tagweide 2, 76139 Karlsruhe
Online-ID: 2k4ms5f
Referenznummer: 2025060
Finde Angebote wie dieses
Hier geht es zu unserem Impressum, den Allgemeinen Geschäftsbedingungen, den Hinweisen zum Datenschutz und nutzungsbasierter Online-Werbung.