

E + V Hamburg Immobilien GmbH
Team Engel & Völkers Hamburg Projekte
+49 ···
Nr. anzeigenDieses Angebot ist Teil des Neubauprojekts
The Lyte
Preise & Kosten
Provision für Käufer
Die vom Käufer und Verkäufer an uns zu zahlende Courtage in Höhe von jeweils 2,975 % inkl. Weitere Informationen siehe Provisionshinweis.
Lage
Das Projekt 'The Lyte' liegt in der HafenCity - einem der modernsten und spannendsten Stadtteile Hamburgs. Die HafenCity vereint auf einzigartige Weise urbanes Wohnen mit einem vielfältigen Angebot an Einkaufsmöglichkeiten und Gastronomie. Im südlichen Teil des Überseequartiers ist ein komplett neues Quartier entstanden, das...
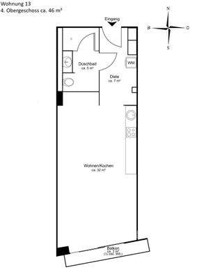
Die Wohnung
Wohnanlage
Das Neubauprojekt
Energie & Heizung
Warum sehe ich diese Anzeige? – Du siehst diese Anzeige basierend auf Ihrer Navigation auf unserer Website und den Suchkriterien, die du verwendet hast.
Energieausweistyp
Bedarfsausweis
Gebäudetyp
Wohngebäude
Baujahr laut Energieausweis
2025
Gültigkeit
seit 30.09.2020
Effizienzklasse
B
Endenergiebedarf
66,40 kWh/(m²·a)
Weitere Energiedaten
Energieträger
Fernwärme
Heizungsart
Fußbodenheizung
Details
Objektbeschreibung
Diese lichtdurchflutete 1-Zimmer-Wohnung mit Südausrichtung begeistert durch ihren offene Raumgestaltung. Die großzügigen bodentiefen Fenster lassen viel Licht herein und schaffen in Kombination mit dem edlen Eichenparkett eine warme, klare Atmosphäre. Die hochwertige Siemens-Einbauküche und das stilvolle Bad mit...
Ausstattung
Einbauküche, Einbauschränke
Preisinformation
1 Tiefgaragenstellplatz, Kaufpreis: 50.000,00 EUR
Weitere Informationen
Provisionshinweis
Die vom Käufer und Verkäufer an uns zu zahlende Courtage in Höhe von jeweils 2,975 % inkl. Umsatzsteuer auf den Kaufpreis ist mit dem Zustandekommen des Kaufvertrages (notarieller Vertragsabschluss) verdient und fällig. Käufer und Verkäufer schulden die Courtage aufgrund separater Vereinbarungen in...
Anbieter der Immobilie
E + V Hamburg Immobilien GmbH
Stadthausbrücke 5, 20355 Hamburg

Online-ID: 2k4pj5c
Referenznummer: I-030EVM-W-030EVM
Finde Angebote wie dieses
Hier geht es zu unserem Impressum, den Allgemeinen Geschäftsbedingungen, den Hinweisen zum Datenschutz und nutzungsbasierter Online-Werbung.