
BV Bauträger und Immobilien GmbH
Herrn Mario Körber
+49 ···
Nr. anzeigenPreise & Kosten
Kaution
2.500,00
Warum sehe ich diese Anzeige? – Du siehst diese Anzeige basierend auf Ihrer Navigation auf unserer Website und den Suchkriterien, die du verwendet hast.
Lage
1A-Lage
Das Objekt befindet sich in guter Lage in NÜRNBERG-Almoshof, in der Nähe des Nürnberger "Albrecht-Dürer"-Flughafens, etwa 5 km vom Zentrum, dem Hauptmarkt entfernt.
Der Ortsteil Almoshof ist ein beliebter Stadtteil im Norden von Nürnberg am Rande des Nürnberger-"Knoblauchlandes".
Die Anbindung an...
Die Wohnung
Derzeitige Nutzung
frei
Energie & Heizung
Warum sehe ich diese Anzeige? – Du siehst diese Anzeige basierend auf Ihrer Navigation auf unserer Website und den Suchkriterien, die du verwendet hast.
Energieausweistyp
Bedarfsausweis
Gebäudetyp
Wohngebäude
Baujahr laut Energieausweis
2024
Gültigkeit
bis 03.05.2034
Endenergiebedarf
139,00 kWh/(m²·a)
Weitere Energiedaten
Energieträger
Gas, Öl
Heizungsart
Luft-/Wasser-Wärmepumpe
Details
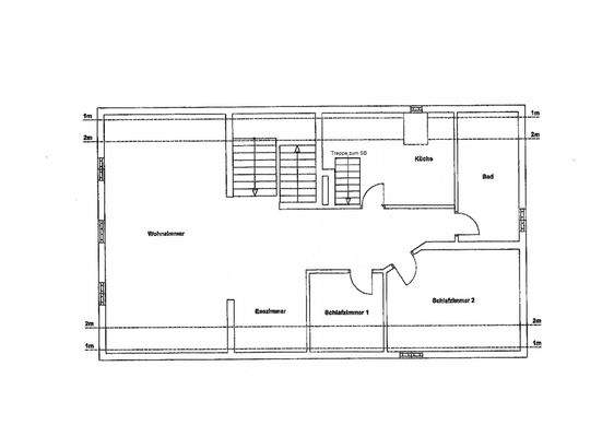
Objektbeschreibung
Das Objekt wurde um 1930 als Einfamilien-Wohnhaus gebaut und letztes Jahr (2024) in 4 einzelne Wohnungen aufgeteilt und umgebaut.
Das Wohnhaus befindet sich in einem gepflegten Allgemeinzustand und wurde aktuell auch technisch in einen zeitgemäßen Zustand umgebaut.
Die hier angebotene 3 Zimmer-Dachgeschoss...
Ausstattung
-gute und ruhige Lage
-Erstbezug nach Umbau und Renovierung
-eigene neue Wärmepumpe
-Laminatboden
-neues Badezimmer mit Dusche
-weiteres Duschbad mit WC im Spitzboden
-großer Wohn- und Essbereich
-komplett neu ausgebauter Spitzboden mit etwa 35 m²
-neue geflammte Holztreppe zum Dachgeschoss
-sofort...
Weitere Informationen
Flächen
Das Objekt hat eine Wohnfläche von ca. 102 m² im Dachgeschoss
+ etwa 35 m² im neuen Spitzboden
Stichworte
Zustand: renoviert, saniert
Anbieter der Immobilie
BV Bauträger und Immobilien GmbH
Pfinzingweg 9, 91058 Erlangen
Online-ID: 2k4wg5z
Referenznummer: 1505
Finde Angebote wie dieses
Hier geht es zu unserem Impressum, den Allgemeinen Geschäftsbedingungen, den Hinweisen zum Datenschutz und nutzungsbasierter Online-Werbung.