
Werth Immobilien GbR
Aida Likovic
004 ···
Nr. anzeigenPreise & Kosten
Provision für Käufer
3,57 inkl. MwSt. inkl. MwSt.
Lage
Eddelak liegt unweit des südlichen Nord-Ostsee-Kanals, nur wenige Autominuten von Brunsbüttel entfernt.
Eddelak verfügt selbst über einen kleinen Supermarkt, einen Bäcker, eine Tankstelle und einen Hausarzt.
Eddelak ist geprägt von einem idyllischen Ambiente das im Urlaub absolute Erholung verspricht. Von hier...
Das Haus
Kategorie
Einfamilienhaus
Baujahr
1920
Energie & Heizung
Warum sehe ich diese Anzeige? – Du siehst diese Anzeige basierend auf Ihrer Navigation auf unserer Website und den Suchkriterien, die du verwendet hast.
Energieausweistyp
Bedarfsausweis
Gebäudetyp
Wohngebäude
Baujahr laut Energieausweis
1998
Wesentliche Energieträger
GAS
Gültigkeit
bis 22.05.2035
Effizienzklasse
G
Endenergiebedarf
212,21 kWh/(m²·a)
Weitere Energiedaten
Energieträger
Gas
Heizungsart
Zentralheizung
Details
Objektbeschreibung
Dieses charmante Einfamilienhaus bietet die perfekte Grundlage für kreative Gestaltungsideen und individuelle Wohnträume. Mit etwas handwerklichem Geschick und Liebe zum Detail lässt sich hier ein gemütliches Zuhause in ruhiger Umgebung verwirklichen.
Im Erdgeschoss empfängt Sie ein großzügiges, lichtdurchflutetes...
Ausstattung
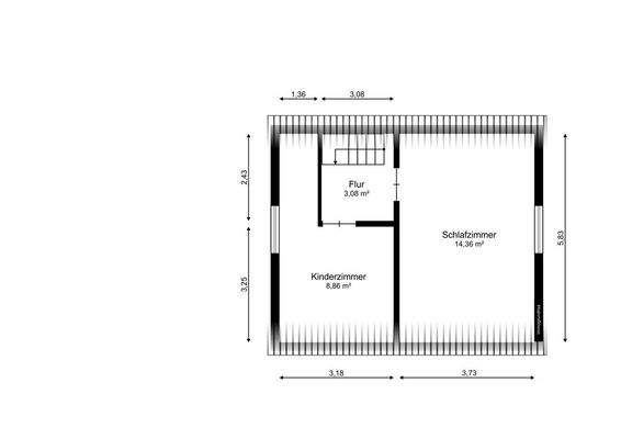
Erdgeschoss :
- Flur
- Wohnzimmer mit Kamin
- Küche
- Badezimmer
- Heizungsraum
Dachgeschoss :
- Flur
- 2 Zimmer
Außenbereich :
- großer Schuppen
- Holzlager
- Garten
- Freiplatz vor dem Haus
Preisinformation
2 Stellplätze
Weitere Informationen
Sonstiges
Die Besichtigung ist jederzeit möglich, jedoch nach vorheriger Terminabsprache! Bitte wahren Sie die Diskretion und sehen Sie vom Betreten des Grundstücks ohne Begleitung des Immobilienberaters ab. Sämtliche Unterlagen und Angaben wurden uns vom Auftraggeber übergeben / mitgeteilt. Für die Richtigkeit dieser...
Anbieter der Immobilie
Werth Immobilien GbR
Roggenstr. 1, 25704 Meldorf
Online-ID: 2k4wm55
Referenznummer: BU-518-AL-25
Finde Angebote wie dieses
Hier geht es zu unserem Impressum, den Allgemeinen Geschäftsbedingungen, den Hinweisen zum Datenschutz und nutzungsbasierter Online-Werbung.