

Bürofläche zur Miete • provisionsfreiMietkosten auf Anfrage
Mietkosten auf Anfrage
Ihr neuer Standort in Vaterstetten
Merkmale
- Teeküche
- Personenaufzug
- voll klimatisiert
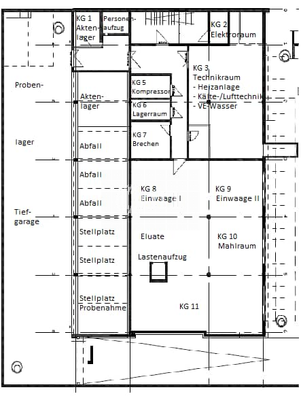
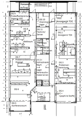
Grundrisse
Grundrisse
1 / 4
Realisiere Dein Projekt
Bausubstanz und Energie
Der Anbieter hat keine Informationen zu Energieverbrauch oder Zustand der Immobilie bereit gestellt.
Mietkosten
Miete auf Anfrage
Provision für Mieter
provisionsfrei; provisionsfrei für den Mieter/Käufer
Kaution
keine Angabe
Lage

Vaterstetten (85591)
Der Anbieter hat die genaue Adresse nicht freigegeben
Weitere Informationen
Weitere Services
Lust auf eine Besichtigung?
Eine Frage zur Immobilie?
Über den Anbieter
Ludwigstraße 8, 80539 München
Partnerschaft
Herr Nicolai ReichertDein Kontakt
Online-ID: 2k5m35r
Referenznummer: 4@of89454@14@0

Jones Lang LaSalle SE - Office Leasing München
Wie zufrieden bist du mit dieser Seite (nicht mit der Immobilie selbst)?

