
IMMORath
Herr Nicola Sabatino
004 ···
Nr. anzeigenPreise & Kosten
Provision für Käufer
3,57% inkl. MwSt.
Lage
Diese einladende Erdgeschosswohnung befindet sich in einer begehrten Lage der Stadt Freiburg im Breisgau, die für ihre Lebensqualität und ihr angenehmes Klima bekannt ist. Die Wohnlage in einem ruhigen Viertel bietet eine harmonische Verbindung aus Natur und urbanem Leben. Die Nähe zur Natur ist außergewöhnlich und regt zum...
Die Wohnung
Wohnungslage
Erdgeschoss
Bezug
Frei nach Absprache
Wohnanlage
Energie & Heizung
Warum sehe ich diese Anzeige? – Du siehst diese Anzeige basierend auf Ihrer Navigation auf unserer Website und den Suchkriterien, die du verwendet hast.
Energieausweistyp
Verbrauchsausweis
Gebäudetyp
Wohngebäude
Baujahr laut Energieausweis
1962
Wesentliche Energieträger
GAS
Gültigkeit
bis 25.06.2035
Effizienzklasse
C
Endenergieverbrauch
93,70 kWh/(m²·a)
Weitere Energiedaten
Energieträger
Gas
Heizungsart
Zentralheizung
Details
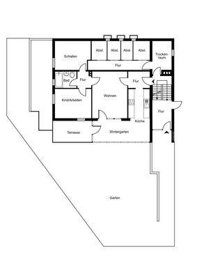
Objektbeschreibung
- Attraktive Erdgeschosswohnung zum Kauf in Freiburg im Breisgau
- Baujahr 1962, gepflegter Gesamtzustand
- Großzügige Wohnfläche von ca. 83 m²
- Helle 3-Zimmer-Wohnung
- Garten direkt an der Terrasse
- Moderne und praktische Raumeinteilung
- Charmantes Badezimmer mit allen Annehmlichkeiten
- Einladende...
Preisinformation
1 Stellplatz
1 Garagenstellplatz
Weitere Informationen
Sonstiges
Sie haben Interesse und möchten zeitnah die Immobilie besichtigen? Kein Problem! Schicken Sie uns gerne Ihre Anfrage, Sie werden von der Immobilie begeistert sein!
Alle vom Eigentümer bereitgestellten Informationen werden als zuverlässig erachtet, aber nicht garantiert und sollten unabhängig verifiziert...
Anbieter der Immobilie
Online-ID: 2k5nq5l
Referenznummer: IR0625336
Finde Angebote wie dieses
Hier geht es zu unserem Impressum, den Allgemeinen Geschäftsbedingungen, den Hinweisen zum Datenschutz und nutzungsbasierter Online-Werbung.