

Freitag Immobilienbewertung
Herr Birger Freitag
039 ···
Nr. anzeigenPreise & Kosten
Provision für Käufer
Der Erwerber zahlt eine Maklerprovision in Höhe von 3 % des Kaufpreises
Lage
Die Ortschaft Seehausen gehört zur Gemeinde Oberuckersee und befindet sich im Zentrum des Landkreises Uckermark. Man erreicht den Ort über die A 11, Abfahrt Warnitz oder mit der Bahnverbindung Berlin-Stralsund, Haltestelle Seehausen.
Die leicht hügelige Landschaft ist geprägt von einer Vielzahl von Seen und ausgedehnten...
Das Haus
Geschosse
2 Geschosse
Baujahr
2012
Derzeitige Nutzung
vermietet
Energie & Heizung
Warum sehe ich diese Anzeige? – Du siehst diese Anzeige basierend auf Ihrer Navigation auf unserer Website und den Suchkriterien, die du verwendet hast.
Weitere Energiedaten
Haustyp
Massivhaus
Energieträger
Gas
Heizungsart
Fußbodenheizung, Ofen
Details
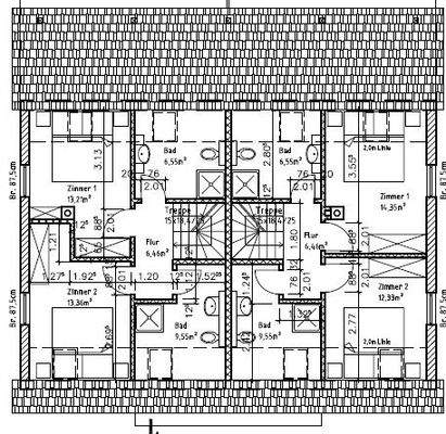
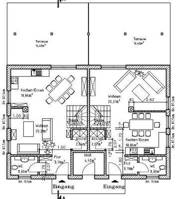
Objektbeschreibung
Objektbeschreibung
Das Grundstück mit seiner Größe von ca. 550 m² befindet sich in zentraler, sehr ruhiger Ortslage ohne Durchgangsverkehr. Die Entfernung zum Bahnhof und zur nächsten Badestelle des Oberuckersees beträgt nur wenige Meter.
Das Doppelhaus ist im Jahre um 2012 in massiver Bauweise errichtet worden. Es...
Weitere Informationen
Besichtigungstermine
Besichtigungstermine können unter der Rufnummer 03984 8306038 vereinbart werden.
Stichworte
Sonstiges/Wohnen: Dachboden
Versorgung: Städtische Wasserversorgung, Städtische Stromversorgung
Sonstiges: frei werdend
Anbieter der Immobilie
Freitag Immobilienbewertung
Steinstraße 24, 17291 Prenzlau

Online-ID: 2k5se5u
Finde Angebote wie dieses
Hier geht es zu unserem Impressum, den Allgemeinen Geschäftsbedingungen, den Hinweisen zum Datenschutz und nutzungsbasierter Online-Werbung.