

BUERO.IMMOBILIEN Leipzig GmbH & Co. KG
Frau Kathrin Oldenburg
034 ···
Nr. anzeigenPreise & Kosten
Provision für Mieter
provisionsfrei
Warum sehe ich diese Anzeige? – Du siehst diese Anzeige basierend auf Ihrer Navigation auf unserer Website und den Suchkriterien, die du verwendet hast.
Lage
Die Bürofläche befindet sich in den Plagwitzer Höfen, einem historischen Gewerbeareal im Leipziger Westen. Die Umgebung zeichnet sich durch eine Mischung aus Gewerbe, Einzelhandel, Handwerksbetrieben und Bildungseinrichtungen aus. Die Anbindung an den öffentlichen Nahverkehr ist hervorragend: Der Bahnhof Plagwitz ist in...
Büro-/Praxisfläche
Kategorie
Bürofläche
Details
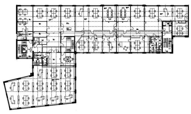
Objektbeschreibung
Diese großzügige Büroeinheit bietet auf ca. 1.254 m² helle und moderne Arbeitsräume, die ab 565 m² teilbar sind. Die Fläche befindet sich im 1. Obergeschoss eines denkmalgeschützten Gebäudes aus dem Jahr 1900, das 2009 umfassend saniert wurde. Ausstattungsmerkmale wie stuhlrollenfeste Teppichfliesen, eine moderne Küche...
Weitere Informationen
Sonstiges
Der Mietpreis richtet sich nach Ausstattung, Mietvertragslaufzeit und Lage im Objekt und liegt
ca. zwischen 11,00 und 12,00 EUR/m² zzgl. Nebenkosten. Gern unterbreiten wir Ihnen Ihr persönliches Mietangebot.
BUEROanmietung leicht gemacht?
Bitte sprechen Sie uns an, gern stellen wir Ihnen eine...
Anbieter der Immobilie
BUERO.IMMOBILIEN Leipzig GmbH & Co. KG
Markt 9, 04109 Leipzig

Online-ID: 2k62f55
Referenznummer: 1437/E2/Eh4
Finde Angebote wie dieses
Hier geht es zu unserem Impressum, den Allgemeinen Geschäftsbedingungen, den Hinweisen zum Datenschutz und nutzungsbasierter Online-Werbung.