

Sirius Facilities GmbH
Herr Felix Meier
080 ···
Nr. anzeigenPreise & Kosten
Kaution
3 Bruttowarmmieten
Provision für Mieter
Die Vermietung erfolgt provisionsfrei!
Warum sehe ich diese Anzeige? – Du siehst diese Anzeige basierend auf Ihrer Navigation auf unserer Website und den Suchkriterien, die du verwendet hast.
Lage
Das Gewerbegebiet Mannheim-Käfertal liegt im Nordosten der Stadt. Direkt an der B38 befindet sich der Sirius Business Park. Die A6 und das Viernheimer Kreuz sind nur fünf Minuten entfernt, und die Innenstadt Mannheims erreichen Sie in zehn Minuten. Parkplätze stehen direkt auf dem Gelände zur Verfügung. Mit den öffentlichen...
Büro-/Praxisfläche
Kategorie
Bürofläche
Geschoss
Erdgeschoss
Energie & Heizung
Warum sehe ich diese Anzeige? – Du siehst diese Anzeige basierend auf Ihrer Navigation auf unserer Website und den Suchkriterien, die du verwendet hast.
Weitere Energiedaten
Heizungsart
Etagenheizung
Details
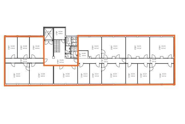
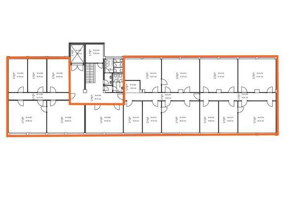
Objektbeschreibung
Entdecken Sie günstige Büroflächen und Lagermöglichkeiten im Sirius Business Park Mannheim-Käfertal. Mit flexiblen Mietlaufzeiten und rund um die Uhr zugänglichen Räumlichkeiten erfreuen sich die Mieter hier optimaler Arbeitsbedingungen. Der Standort punktet zudem mit Annehmlichkeiten wie E-Ladestationen, einem Amazon Locker...
Ausstattung
. Gesamtfläche: 635;49 m² im 5.OG (HNF: 497;53 m², NNF/TF: 84,62 m²)
. Zustand: Renoviert, Personenaufzug
. Technische Ausstattung: Zentralheizung, DSL, Deckenbeleuchtung
. Bodenbelag: Teppichboden/Nadelfilz
. Annehmlichkeiten: Teeküche
. Parkmöglichkeiten: Stellplatz verfügbar zu mieten
. Ab Sofort...
Weitere Informationen
Sonstiges
*Das Angebot gilt für Neukundenverträge, die innerhalb von 72 Stunden nach Besichtigung unterzeichnet werden. Der Sonderpreis bezieht sich auf die Nettokaltmiete und wird ab einer Laufzeit von 12 Monaten in den ersten 2 Monaten gewährt. Das Angebot gilt im Zeitraum 08.09.25-31.03.26 auf ausgewählte Flächen und...
Dokumente
Anbieter der Immobilie

Online-ID: 2k65j5f
Referenznummer: A12046
Finde Angebote wie dieses
Hier geht es zu unserem Impressum, den Allgemeinen Geschäftsbedingungen, den Hinweisen zum Datenschutz und nutzungsbasierter Online-Werbung.