

Wohnung zur Miete1.071 €4 Zimmer • 90,9 m² • 2. Geschoss
1.071 €
4 Zimmer • 90,9 m² • 2. Geschoss
Wohnung mit 4 Zimmer in Aspach -Maisonette - Ăśbersiedelungsbonus 2 Monate nur die Betriebskosten zahlen !!
Merkmale
- Bezug: sofort
- 2. Geschoss
- Kelleranteil
- Waschraum
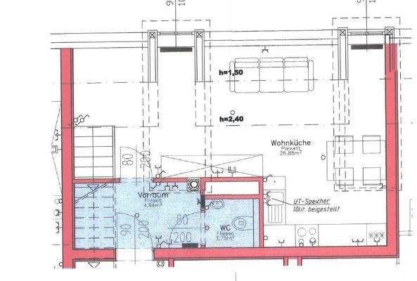
Grundrisse
Grundrisse
1 / 2
Realisiere Dein Projekt
Bausubstanz und Energie
Heizwärmebedarf (HWB)
C
Gesamtenergieeffizienz (fGEE)
C
Mietkosten
Gesamtmiete
1.071,12 €
Nettokaltmiete
nicht angegeben
Kaution
3230 €
Weitere Preisinformationen
Monatliche Miete inkl. Betriebskosten, Heizung und USt. exkl. Strom. Die Wohnung ist auf 2 Etagen aufgeteilt (OG+DG). Etage 1: Vorraum, WC, WohnkĂĽche, Etage 2: Schlafzimmer mit Schrankraum, 2 Kinderzimmer, Bad/WC.
Lage

Marktplatz 8, Aspach (5252)
Weitere Informationen
Weitere Services
Lust auf eine Besichtigung?
Eine Frage zur Immobilie?
Ăśber den Anbieter
Online-ID: 2k6d65p
Referenznummer: 655

OĂ– Wohnbau
Wie zufrieden bist du mit dieser Seite (nicht mit der Immobilie selbst)?

