

Thomas W. Lang Diplom Immobilienwirt D.I.A/Bankkaufmann
Herr Thomas Lang
094 ···
Nr. anzeigenPreise & Kosten
Provision für Käufer
3,57% vom Kaufpreis inkl. MwSt.
Lage
Dieses Einfamilienhaus befindet sich am südlichen Zentrumsrand, ca. 2 km von der Fußgängerzone (Altstadt) entfernt.
Dieses Wohngebiet befindet sich zwischen der Universität und der Altstadt in Kumpfmühl/Königswiesen
Das Haus
Kategorie
Einfamilienhaus
Baujahr
1979
Bezug
freiwerdend auf Wunsch
Energie & Heizung
Warum sehe ich diese Anzeige? – Du siehst diese Anzeige basierend auf Ihrer Navigation auf unserer Website und den Suchkriterien, die du verwendet hast.
Energieausweistyp
Verbrauchsausweis
Gebäudetyp
Wohngebäude
Baujahr laut Energieausweis
2006
Gültigkeit
bis 17.04.2027
Effizienzklasse
C
Endenergieverbrauch
90,40 kWh/(m²·a)
Weitere Energiedaten
Energieträger
Gas, Solar
Heizungsart
Zentralheizung
Details
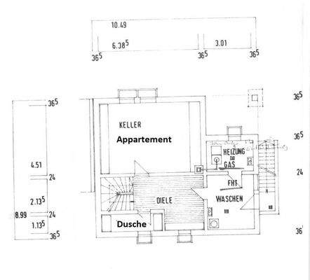
Objektbeschreibung
5-Zi.-Einfamilienhaus inkl. 1-Zi.-ELW, 2 Bädern und Photovoltaikanlage in Regensburg Süd/Kumpfmühl/Königswiesen
Ort: 93051 Regensburg
Lage: ca. 2 km südlich der Altstadt in Kumpfmühl/Königswiesen
Baujahr: 1979
Wohnfläche: ca. 185 m²
Grundstück: ca. 823 m²
Aufteilung:
EG...
Weitere Informationen
Besonderheiten
- Photovoltaikanlage (Bj 2010) Anlagengröße 7,215 kWp
- Stromeigenverbrauch, Rest wird an Regensburg Netz verkauft
- Fenster neu 2016
- Kaminofen im Esszimmer
- inkl Einbauküche
- eigener Eingang zum Appartement im UG
- Energiewert 90,4 kWh (C)
Sonstige Angaben
Bei Erwerb...
Anbieter der Immobilie

Online-ID: 2k6dq5l
Referenznummer: AP3306
Finde Angebote wie dieses
Hier geht es zu unserem Impressum, den Allgemeinen Geschäftsbedingungen, den Hinweisen zum Datenschutz und nutzungsbasierter Online-Werbung.