
neuner.immo - Beratung & Verkauf
Herr Thomas Neuner
004 ···
Nr. anzeigenPreise & Kosten
Provision für Käufer
3% zzgl. 20% Mwst. inkl. MwSt.
Lage
In sonniger Lage, nahe dem Zentrum von St. Johann in Tirol, liegt dieses Grundstück mit atemberaubendem Bergblick.
Dank des breiten Talkessels gilt St. Johann in Tirol als echtes Sonnental. Die Region bietet 50 Pistenkilometer am Kitzbüheler Horn, 17 Liftanlagen, über 250 Kilometer Langlaufloipen, eine Eislaufbahn...
Die Immobilie
Zu diesem Angebot wurden vom Anbieter keine weiteren Daten hinterlegt. Für weitere Informationen bitte den Anbieter kontaktieren.
Nach Informationen fragenDetails
Objektbeschreibung
In einer sonnigen Lage von St. Johann in Tirol befindet sich dieses 800 m² große Grundstück mit Baugenehmigung für ein Einfamilienhaus, das eine Einliegerwohnung umfasst und eine beeindruckende Aussicht auf die umliegenden Berge bietet.
Planung:
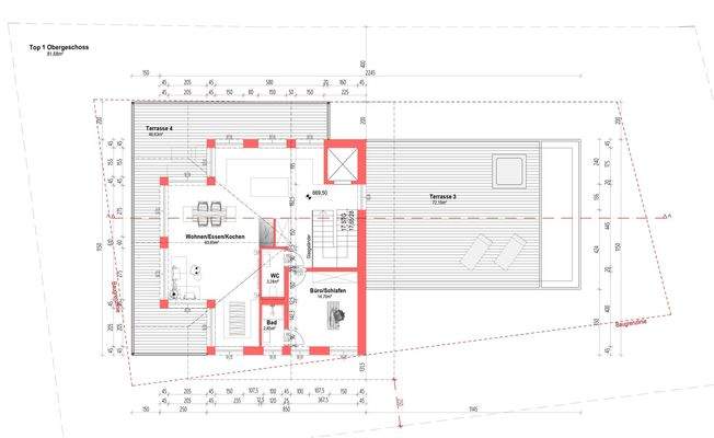
Der großzügige Wohnbereich mit Küche und Esszimmer ist im Dachgeschoss...
Preisinformation
2 Stellplätze
4 Tiefgaragenstellplätze
Weitere Informationen
Stichworte
Bundesland: Tirol
Anbieter der Immobilie
neuner.immo - Beratung & Verkauf
Kaiserstraße 5, 6380 St. Johann in Tirol
Online-ID: 2k6jh5v
Referenznummer: 25-1034
Finde Angebote wie dieses
Günstige Immobilienfinanzierung einfach online berechnen
Persönliches Angebot berechnenWarum sehe ich diese Werbung? – Du siehst diese Werbung basierend auf Deiner Navigation auf unserer Website und der von Dir verwendeten Suchkriterien.
Diese Werbung wird bezahlt von durchblicker
Werbung melden
Hier geht es zu unserem Impressum, den Allgemeinen Geschäftsbedingungen, den Hinweisen zum Datenschutz und nutzungsbasierter Online-Werbung.