

Lea Dörrmann Immobiliendienstleistungen e.K.
Frau Lea Dörrmann
015 ···
Nr. anzeigenPreise & Kosten
Provision für Käufer
provisionsfrei
Lage
Die Neubauentwicklung befindet sich in Alterlangen, Krähenhorst 10.
Einrichtungen des täglichen Bedarfs, der medizinischen Versorgung sowie der schulischen Bildung befinden sich in naher Umgebung.
Die Wohnung
Wohnungslage
1. Geschoss
Bezug
31.12.2026
Derzeitige Nutzung
frei
Wohnanlage
Energie & Heizung
Warum sehe ich diese Anzeige? – Du siehst diese Anzeige basierend auf Ihrer Navigation auf unserer Website und den Suchkriterien, die du verwendet hast.
Weitere Energiedaten
Energieträger
Elektro
Haustyp
KfW 40
Heizungsart
Fußbodenheizung, Luft-/Wasser-Wärmepumpe, Zentralheizung
Details
Objektbeschreibung
Das Neubauvorhaben K10 befindet sich in Alterlangen, Krähenhorst 10.
Das Gebäude umfasst 8 Wohneinheiten mit 2-3 Zimmer zwischen 32 und 78qm Wohnfläche.
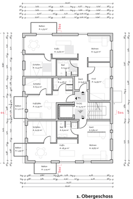
Die hier angebotene 2-Zimmer-Wohnung liegt im 1. Obergeschoss des Neubauvorhabens und verfügt über einen Balkon.
Vom Eingangsbereich aus erschließt sich...
Weitere Informationen
Kontakt
Gerne sende ich Ihnen ausführliche Unterlagen und Informationen.
Kontaktieren Sie mich unter doerrmann@doerrmann-immo.de
Anbieter der Immobilie
Lea Dörrmann Immobiliendienstleistungen e.K.
Sulzbürger Straße 8 , 92318 Neumarkt

Online-ID: 2k6ne54
Referenznummer: K10-W5
Finde Angebote wie dieses
Hier geht es zu unserem Impressum, den Allgemeinen Geschäftsbedingungen, den Hinweisen zum Datenschutz und nutzungsbasierter Online-Werbung.