

Kienle Immobilien - Thomas Kienle Einzelunternehmung
Herr Thomas Kienle
+49 ···
Nr. anzeigenPreise & Kosten
zzgl. Nebenkosten
Provision für Mieter
Es wird eine Maklerprovision in Höhe von 2,38 Monatskaltmieten einschl. MwSt. (aktuell 19%) berechnet. Die Provision ist mit dem Datum des Mietvertrages verdient und fällig.
Warum sehe ich diese Anzeige? – Du siehst diese Anzeige basierend auf Ihrer Navigation auf unserer Website und den Suchkriterien, die du verwendet hast.
Lage
Der "Schwanenbau" in Offenburg befindet sich in der Hauptstraße kurz vor dem Beginn der Innenstadt.
Büro-/Praxisfläche
Kategorie
Bürofläche
Baujahr
1977
Bezug
01.01.2026
Geschoss
4. Geschoss
Energie & Heizung
Warum sehe ich diese Anzeige? – Du siehst diese Anzeige basierend auf Ihrer Navigation auf unserer Website und den Suchkriterien, die du verwendet hast.
Weitere Energiedaten
Energieträger
Gas
Heizungsart
Zentralheizung
Details
Objektbeschreibung
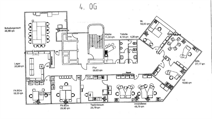
Zur Neuvermietung ab dem 01.01.2026 steht hier das 4. OG im "Schwanenbau" in Offenburg.
Hier befinden sich 10 Räume, wovon einer als Pausenraum mit kleiner Einbauküche verwendet wird.
Zusätzlich gibt es 2 getrennte Toiletten und einen kleinen Serverraum, welcher klimatisiert ist.
Die gesamte Etage ist...
Ausstattung
In den Räumlichkeiten befinden sich teilweise Einbauschränke, in jeder Etage gibt es eine Einbauküche, welche dem zukünftigen Mieter zur Verfügung gestellt werden.
Preisinformation
3 Stellplätze, Miete je: 60,00 EUR
Weitere Informationen
Maklerprovision
Es wird eine Maklerprovision in Höhe von 2,38 Monatskaltmieten einschl. MwSt. (aktuell 19%) berechnet. Die Provision ist mit dem Datum des Mietvertrages verdient und fällig.
Sonstiges
Dieses Angebot richtet sich ausschließlich an Gewerbetreibende!
Korrektheit der Angaben
Ich weise darauf...
Dokumente
Anbieter der Immobilie

Online-ID: 2k6uv5u
Referenznummer: 0008-25-3 (1/419)
Finde Angebote wie dieses
Hier geht es zu unserem Impressum, den Allgemeinen Geschäftsbedingungen, den Hinweisen zum Datenschutz und nutzungsbasierter Online-Werbung.