

IC IMMOCONSULT e.K.
Herr Ron Kaufmann
034 ···
Nr. anzeigenPreise & Kosten
Provision für Mieter
provisionsfrei
Warum sehe ich diese Anzeige? – Du siehst diese Anzeige basierend auf Ihrer Navigation auf unserer Website und den Suchkriterien, die du verwendet hast.
Lage
Die freistehenden Hallen befinden sich in Leipzig, im Stadtteil Dölitz.
Dölitz ist ein Stadtteil von Leipzig, der 1910 durch die Eingemeindung des Dorfes Dölitz entstand. Seit der kommunalen Neugliederung von Leipzig im Jahre 1992 bildet Dölitz mit Dösen den Ortsteil Dölitz-Dösen und liegt knapp 6 km südlich des...
Die Industriefläche
Kategorie
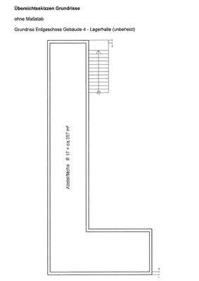
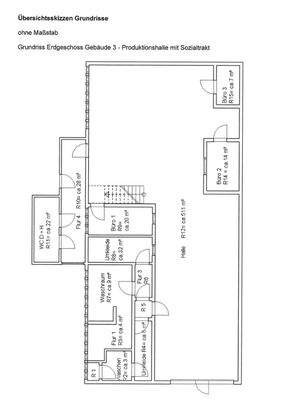
Lagerhalle
Bezug
sofort
Energie & Heizung
Warum sehe ich diese Anzeige? – Du siehst diese Anzeige basierend auf Ihrer Navigation auf unserer Website und den Suchkriterien, die du verwendet hast.
Weitere Energiedaten
Energieträger
Fernwärme
Details
Objektbeschreibung
Bei dieser Immobilie handelt es sich um 2 pfeilerfreie, nebeneinander stehende Hallen mit Sanitäranlagen im EG und Büro-/Lagerflächen im OG in ruhiger Lage.
Die offene Gestaltung ermöglicht eine flexible Nutzung der Fläche und lässt Raum für kreative Konzepte.
Helle, gut beleuchtete Räume schaffen eine...
Ausstattung
- eingezäuntes Grundstück
- 2 freistehende, nebeneinander liegende Hallen
- große Einfahrtstore
- Einbau von elektrischen Rolltor mgl.
- zum Teil renovierungsbedürftig
- deaktivierte Heizkörper vorhanden
- Gesamtfläche: ca. 1.634 m²
- ca. 7,50 bis 9 m Hallenhöhe
- in beiden Hallen jeweils eine 2...
Weitere Informationen
Sonstiges
Die von uns gemachten Angaben haben wir nach bestem Wissen und Gewissen nach Informationen des Vermieters/Verkäufers und den uns übergebenen Informationen zusammengestellt. Eine Gewähr für diese Angaben können wir nicht übernehmen. Wichtige Zahlen und Informationen sind am Objekt zu überprüfen...
Anbieter der Immobilie
IC IMMOCONSULT e.K.
Hillerstraße 3, 04109 Leipzig

Online-ID: 2k6vh5e
Referenznummer: 302g100#yWqe1d
Finde Angebote wie dieses
Hier geht es zu unserem Impressum, den Allgemeinen Geschäftsbedingungen, den Hinweisen zum Datenschutz und nutzungsbasierter Online-Werbung.