

Immobilien-Schmid-Bodensee
Eheleute Frank + Claudia Schmid
075 ···
Nr. anzeigenPreise & Kosten
Kaution
2 MM
Provision für Mieter
3 Kaltmieten zzgl. 19 % Mwst.
Warum sehe ich diese Anzeige? – Du siehst diese Anzeige basierend auf Ihrer Navigation auf unserer Website und den Suchkriterien, die du verwendet hast.
Lage
Gewerbegebiet Ilmensee
In Ilmensee haben sich auch kleinere Unternehmen und Handwerksbetriebe angesiedelt.
Entfernung 0,7 km zum Ortskern Ilmensee das Touristisch geprägt ist..
Die Industriefläche
Kategorie
Produktionshalle
Baujahr
1990
Bezug
sofort
Derzeitige Nutzung
frei
Energie & Heizung
Warum sehe ich diese Anzeige? – Du siehst diese Anzeige basierend auf Ihrer Navigation auf unserer Website und den Suchkriterien, die du verwendet hast.
Energieausweistyp
Verbrauchsausweis
Gebäudetyp
Nicht-Wohngebäude
Wesentliche Energieträger
Pellets
Endenergieverbrauch (Wärme)
97,00 kWh/(m²·a) - Warmwasser enthalten
Weitere Energiedaten
Energieträger
Pellets
Heizungsart
Zentralheizung
Details
Objektbeschreibung
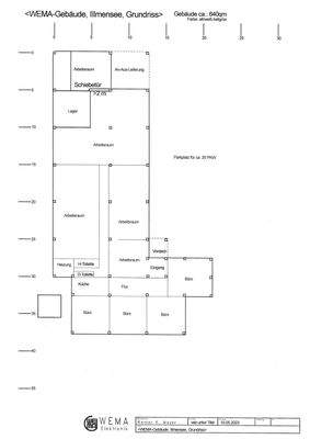
88636 Ilmensee (Sigmaringen) Gewerbehalle Lager Poduktion Büroräume 494,94 qm
Das Fläche Dachumriss gemessen umfasst ca. 640 qm Fläche innen.
Nutzfläche 2183 qm
Baujahr 1990
Pelletheizung Nagelneu mit Tank.
Nutzfläche Lager/Produktion 274 qm + Nutzfläche Büro / Sanitär 207 qm
Zwischenwände sind...
Weitere Informationen
Besichtigungstermine
Besichtigungen:
Immobilien-Schmid-Bodensee.de
Tel: 07541-404805 oder 0160-96022087
Stichworte
Sonstiges: ISDN, EDV-Verkabelung, Kabelkanäle, EDV-Arbeitsplatzbeleuchtung, Getrennte Damen- und Herren-WCs
Anbieter der Immobilie
Immobilien-Schmid-Bodensee
Untere Mühlbachstrasse 4, 88045 Friedrichshafen

Online-ID: 2k73t5e
Referenznummer: 2845745
Finde Angebote wie dieses
Hier geht es zu unserem Impressum, den Allgemeinen Geschäftsbedingungen, den Hinweisen zum Datenschutz und nutzungsbasierter Online-Werbung.