

Kompass Immobilien Ratisbona
Frau Sonja Mündner
+49 ···
Nr. anzeigenPreise & Kosten
Provision für Käufer
provisionsfrei
Lage
Der Ort kleine Seedorf befindet sich im Gemeindebereich Pentling. In nur wenigen Kilometern Entfernung finden man in Bad Abbach oder Pentling alle Geschäfte des täglichen Bedarfs sowie beste Infrastruktur. Zur Schule und zum Kindergarten sind ca. 3 km.
Optimale Anbindung zur Autobahn oder Bundesstraße.
Das Haus
Kategorie
Doppelhaushälfte
Baujahr
2025
Energie & Heizung
Warum sehe ich diese Anzeige? – Du siehst diese Anzeige basierend auf Ihrer Navigation auf unserer Website und den Suchkriterien, die du verwendet hast.
Weitere Energiedaten
Haustyp
Massivhaus
Details
Objektbeschreibung
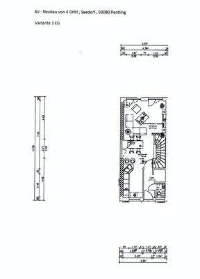
In ruhiger Lage im Gemeindebereich Pentling-Seedorf entstehen 4 Doppelhaushälften.
Baubeginn ist noch nicht erfolgt.
Es sind verschiedene Haustyp-Varianten bzw. Größen möglich:
Variante 1 - 7,11 m x 10,99 m
7 Zimmer, ca. 178 qm Wohnfläche
Kaufpreis Haus 1 699.900 €
Kaufpreis Haus 2 684.900...
Ausstattung
* Stahlbetonkeller mit Wärmedämmung
* Kellergeschoss mit Wohnraumhöhe
* EG, DG und Studio in Ziegelbauweise
* Bodenbeläge als Fliesen, Parkett oder Laminat
* Sichtdachstuhl
* freitragende Holztreppe
* Fußbodenheizung
* Wärmepumpe
* bedarfsgeführte Lüftungsanlage
* 1 Garage
* 1 Stellplatz
Preisinformation
1 Stellplatz
1 Garagenstellplatz
Weitere Informationen
Stichworte
Garage vorhanden, Stellplatz vorhanden, Anzahl der Schlafzimmer: 3, Anzahl der Badezimmer: 1, Anzahl der separaten WCs: 1, Anzahl Terrassen: 1, 3 Etagen
Anbieter der Immobilie

Online-ID: 2k76u5x
Referenznummer: 394#rysRVM 1#p7AsFh
Finde Angebote wie dieses
Hier geht es zu unserem Impressum, den Allgemeinen Geschäftsbedingungen, den Hinweisen zum Datenschutz und nutzungsbasierter Online-Werbung.