
Duken & v. Wangenheim
Herr Leon Kaiser
+49 ···
Nr. anzeigenPreise & Kosten
Kaution
3 Bruttomonatsmieten
Provision für Mieter
provisionsfrei
Warum sehe ich diese Anzeige? – Du siehst diese Anzeige basierend auf Ihrer Navigation auf unserer Website und den Suchkriterien, die du verwendet hast.
Lage
Die Bürofläche befindet sich in attraktiver Lage in der Hufelandstraße 7 im Münchner Stadtteil Milbertshofen-Am Hart. Das Objekt liegt zentral in einem etablierten Gewerbegebiet und profitiert von der direkten Nachbarschaft zum renommierten BMW Campus sowie dem Werk von BMW Motorrad. Diese exponierte Lage in unmittelbarer...
Büro-/Praxisfläche
Kategorie
Bürofläche
Baujahr
2008
Bezug
nach Vereinbarung
Geschoss
1. Geschoss
Energie & Heizung
Warum sehe ich diese Anzeige? – Du siehst diese Anzeige basierend auf Ihrer Navigation auf unserer Website und den Suchkriterien, die du verwendet hast.
Wärme
Energieausweistyp
Verbrauchsausweis
Gebäudetyp
Nicht-Wohngebäude
Wesentliche Energieträger
Fernwärme
Gültigkeit
bis 30.10.2034
Endenergieverbrauch (Wärme)
44,00 kWh/(m²·a)
Weitere Energiedaten
Energieträger
Fernwärme
Details
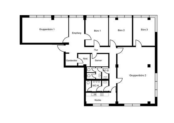
Objektbeschreibung
Im 1. Obergeschoss eines modernen Geschäftshauses erwartet Sie eine großzügige und vielseitig nutzbare Bürofläche, die sowohl funktional als auch repräsentativ überzeugt. Die derzeitige Raumaufteilung umfasst zwei Einzelbüros, zwei Großraumbüros sowie ein Besprechungszimmer und bietet damit ideale Voraussetzungen für...
Weitere Informationen
Sonstiges
Sämtliche Bilder und graphische Darstellungen sind Eigentum von Duken & v. Wangenheim und dürfen nicht durch bzw. an Dritte verwendet oder weitergegeben werden.
Magazin MÜNCHENS BESTLAGEN - https://www.datocms-assets.com/108486/1745574944-2025_01_bestlagen_online.pdf
Aktuelle Kaufangebote -...
Anbieter der Immobilie
Duken & v. Wangenheim
Grosjeanstraße 4, 81925 München
Online-ID: 2k7ay5t
Referenznummer: 2409
Finde Angebote wie dieses
Hier geht es zu unserem Impressum, den Allgemeinen Geschäftsbedingungen, den Hinweisen zum Datenschutz und nutzungsbasierter Online-Werbung.