
Riverside Real Estate GmbH
Herr Jens Grötzner
004 ···
Nr. anzeigenPreise & Kosten
Provision für Käufer
7,14% inkl. 19% Mwst. inkl. MwSt.
Lage
Die Immobilie befindet sich im beliebten Bremer Stadtteil Neustadt-Buntentor, einer der gefragtesten Lagen südlich der Weser. Dieses Viertel zeichnet sich durch seinen urbanen Charme, die gewachsene Nachbarschaft und eine lebendige Mischung aus Altbremer Häusern, kleinen Läden, Cafés, Sportstudios und kulturellen...
Das Haus
Kategorie
Mehrfamilienhaus
Baujahr
1952
Derzeitige Nutzung
vermietet
Energie & Heizung
Warum sehe ich diese Anzeige? – Du siehst diese Anzeige basierend auf Ihrer Navigation auf unserer Website und den Suchkriterien, die du verwendet hast.
Energieausweistyp
Bedarfsausweis
Gebäudetyp
Wohngebäude
Baujahr laut Energieausweis
1965
Wesentliche Energieträger
ERDGAS_LEICHT
Gültigkeit
bis 25.02.2035
Effizienzklasse
F
Endenergiebedarf
189,10 kWh/(m²·a)
Weitere Energiedaten
Haustyp
Massivhaus
Energieträger
Gas
Heizungsart
Zentralheizung
Details
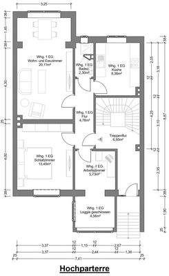
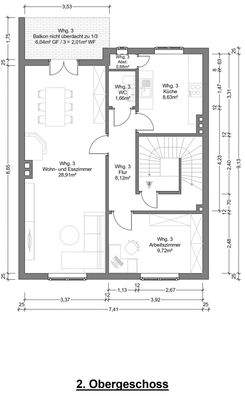
Objektbeschreibung
Attraktives Dreifamilienhaus mit Entwicklungspotenzial in beliebter Lage von Bremen Buntentor - voll vermietet mit Steigerungspotenzial!
Dieses angebotene Dreifamilienhaus in der Bremer Neustadt überzeugt mit solider Bausubstanz, klarer Struktur und interessantem Entwicklungspotenzial. Auf einem ca.?288?m² großen...
Ausstattung
Alle Daten und Fakten zu diesem besonderen Mehrfamilienhaus auf einen Blick:
+ Dreifamilienhaus mit zusätzlichem Ausbaupotenzial im Souterrain
+ Grundstücksgröße ca.?288?m²
+ Wohnfläche gesamt ca.?224,6?m²
+ Nutzfläche ca.?90?m²
+ Bauweise: voll unterkellert, drei Vollgeschosse plus...
Preisinformation
1 Garagenstellplatz
Soll-Mieteinnahmen pro Jahr: 23.412,00 EUR
Ist-Mieteinnahmen pro Jahr: 18.193,44 EUR
Weitere Informationen
Sonstiges
Wir, die Riverside Real Estate GmbH, bieten Immobilien aller Assetklassen zum Verkauf an, mit Standorten in Bremen und Umgebung, Hameln-Pyrmont und Hannover.
Wenn Sie mehr über uns erfahren möchten, besuchen Sie gerne unsere Homepage unter WWW.RIVERSIDE-ESTATE.DE. Dort finden Sie ausführliche Informationen...
Anbieter der Immobilie
Riverside Real Estate GmbH
Erichstr. 16, 31785 Hameln
Online-ID: 2k7c35n
Referenznummer: 2025-401
Finde Angebote wie dieses
Hier geht es zu unserem Impressum, den Allgemeinen Geschäftsbedingungen, den Hinweisen zum Datenschutz und nutzungsbasierter Online-Werbung.