

Jones Lang LaSalle SE - Office Leasing Rhein-Ruhr
Herr Johannes Keck
+49 ···
Nr. anzeigenPreise & Kosten
Provision für Mieter
provisionspflichtig für den Mieter/Käufer
Warum sehe ich diese Anzeige? – Du siehst diese Anzeige basierend auf Ihrer Navigation auf unserer Website und den Suchkriterien, die du verwendet hast.
Lage
Die Büromarktzone Duisburg Hamborn erstreckt sich entlang der Duisburger Straße und wird begrenzt von der A 59 im Norden, sowie der Alleestraße im Süden. Hamborn ist ein internationaler, pulsierender Stadtbezirk im Norden Duisburgs. Durch das Autobahnkreuz Hamborn der A 59 und A 42 mit direkter Verbindung zur A 2 und A 3 ist...
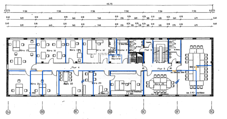
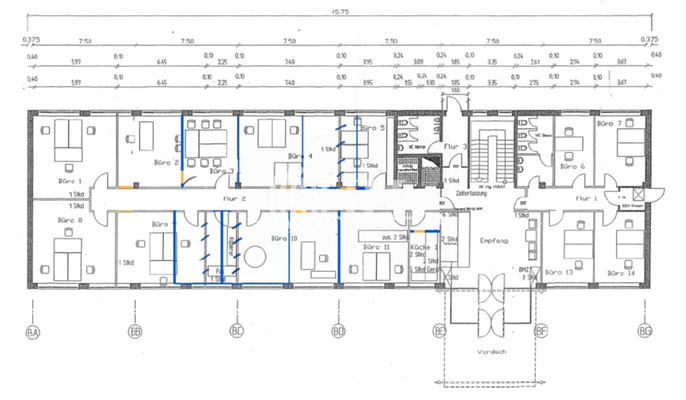
Büro-/Praxisfläche
Kategorie
Bürofläche
Baujahr
1995
Bezug
Sofort
Details
Objektbeschreibung
Die modernen Büroflächen überzeugen durch Ihre Helligkeit und Flexibilität in der Grundrissgestaltung. Es können bis zu 56 PKW-Stellplätze angemietet werden, sodass Nutzer jeglicher Größe ausreichend Parkmöglichkeiten am Objekt vorfinden. Die Büroflächen sind verkehrstechnisch gut abgebunden. So sind einige Autobahnauffahrten...
Ausstattung
- Innenwände Leichtbauweise
- Kabelbühnen umlaufend
- teilweise Klimageräte
- Gaszentralheizung als Fußbodenheizung
- Gesamtparkfläche vor dem Gebäude wurde neu verlegt
Preisinformation
56 Stellplätze, Miete je: 30,00 EUR
Weitere Informationen
Stichworte
Gesamtfläche: 1.057,00 m², modernisiert: 2020-7
Sonstiges: EDV-Verkabelung
Anbieter der Immobilie
Jones Lang LaSalle SE - Office Leasing Rhein-Ruhr
Grugaplatz 2-4, 45131 Essen

Online-ID: 2k7d257
Referenznummer: 4@of86497@14@0
Finde Angebote wie dieses
Hier geht es zu unserem Impressum, den Allgemeinen Geschäftsbedingungen, den Hinweisen zum Datenschutz und nutzungsbasierter Online-Werbung.