
Göttfried Immobilien GmbH
Herr Mathias Brändle
073 ···
Nr. anzeigenPreise & Kosten
Provision für Käufer
provisionsfrei
Lage
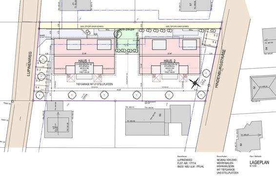
Dieses Neubauprojekt befindet sich am "Neu-Ulmer Michelsberg", dem sogenannten "Kapellenberg" in Pfuhl.
Der Ort ist mit rund 10.000 Einwohnern seit Jahren "das" umschwärmte Gebiet.
Die stadtnahe Vorortslage mit einer vollständigen Infrastruktur und kurzen Wegen ist Kennzeichen dieses Ortsteils. Lebensmittelgeschäfte...
Die Wohnung
Wohnungslage
3. Geschoss (Dachgeschoss)
Bezug
30.11.2026
Wohnanlage
Energie & Heizung
Warum sehe ich diese Anzeige? – Du siehst diese Anzeige basierend auf Ihrer Navigation auf unserer Website und den Suchkriterien, die du verwendet hast.
Weitere Energiedaten
Energieträger
Elektro
Details
Objektbeschreibung
Diese Wohnung ist eine 4-Zimmer Variante der Wohnung Nr. 15 (Haus 2) befindet sich im Dachgeschoss. Sie verfügt über eine Loggia mit einer Gesamtfläche von ca. 14,22 m² (West-Ausrichtung).
Wohnen in der Traumlage von Pfuhl! Am beliebten Kapellenberg in Neu-Ulm, Pfuhl entsteht dieses attraktive Neubauprojekt...
Ausstattung
*großzügige Terrassen/Balkone/Loggien (teilüberdacht)
*Personenaufzug
*Kellerräume und Abstellräume
*KfW 40-Standard (QNG)
*Speicherwärmepumpe:
Präzise und komfortable Regelung der Raumluft
(Heizung, Kühlung, Lüftung) - individuell je Raum
*hauseigene Photovoltaikanlage, betrieben über ein...
Weitere Informationen
Sonstiges
Baubeginn: bereits erfolgt
Voraussichtlicher Bezugstermin: November 2026
Der hier dargestellte Grundriss sowie die Ansichten dienen als Planungsgrundlage. Persönliche Wünsche können ggf. noch berücksichtigt werden.
Hinweis: Angebotsvorbehalt
In diesem Exposé dargestellte Einrichtungsgegenstände...
Anbieter der Immobilie
Göttfried Immobilien GmbH
Edisonallee 27, 89231 Neu-Ulm
Online-ID: 2k7k35r
Referenznummer: 11237
Finde Angebote wie dieses
Hier geht es zu unserem Impressum, den Allgemeinen Geschäftsbedingungen, den Hinweisen zum Datenschutz und nutzungsbasierter Online-Werbung.