
Alain Reinicke Immobilien
Herr Alain Reinicke
037 ···
Nr. anzeigenPreise & Kosten
Provision für Käufer
3,57% inkl. gesetzlicher Mwst. des notariell vereinbarten Gesamtkaufpreises.
Lage
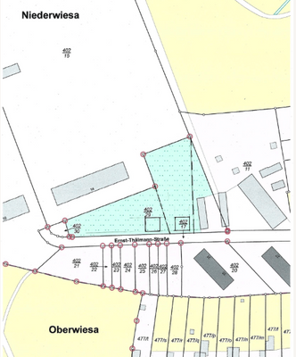
?? Lagebeschreibung - Ernst-Thälmann-Straße, 09577 Niederwiesa
Ruhiges Wohnen mit Top-Anbindung im grünen Umland von Chemnitz
Die Ernst-Thälmann-Straße in Niederwiesa liegt in einer verkehrsberuhigten Wohnlage am Rande des historischen Ortszentrums. Sie zählt zu den bevorzugten Wohngegenden der Gemeinde - ruhig...
Die Immobilie
Zu diesem Angebot wurden vom Anbieter keine weiteren Daten hinterlegt. Für weitere Informationen bitte den Anbieter kontaktieren.
Nach Informationen fragenDetails
Objektbeschreibung
?? Objektbeschreibung - 2 großzügige Baugrundstücke mit je ca. 2.000?m² und Bauträgerbindung
Zum Verkauf stehen zwei großzügige Baugrundstücke mit jeweils ca. 2.000?m² Fläche, gelegen in ruhiger, naturnaher Lage - ideal für die Bebauung mit einem großzügigen Einfamilienhaus oder einer exklusiven Villa. Die Grundstücke...
Anbieter der Immobilie
Alain Reinicke Immobilien
Weststr. 103, 09116 Chemnitz
Online-ID: 2k7k45f
Referenznummer: 3733399
Finde Angebote wie dieses
Hier geht es zu unserem Impressum, den Allgemeinen Geschäftsbedingungen, den Hinweisen zum Datenschutz und nutzungsbasierter Online-Werbung.