

Skyline Real Estate Management GmbH
Herr Furkan Yalcin
017 ···
Nr. anzeigenPreise & Kosten
Provision für Käufer
3,57 inkl. MwSt.
Lage
Die angebotene Doppelhaushälfte befindet sich in einer verkehrsberuhigten, familienfreundlichen Wohngegend im charmanten Ort Eitting, nur wenige Minuten von Erding entfernt, direkt vor den Toren Münchens. Diese Lage verbindet das Beste aus zwei Welten: ländliche Idylle und naturnahe Umgebung treffen auf eine ausgezeichnete...
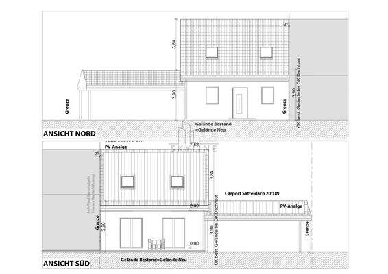
Das Haus
Kategorie
Doppelhaushälfte
Geschosse
3 Geschosse
Baujahr
2026
Bezug
Q2 2026
Energie & Heizung
Warum sehe ich diese Anzeige? – Du siehst diese Anzeige basierend auf Ihrer Navigation auf unserer Website und den Suchkriterien, die du verwendet hast.
Weitere Energiedaten
Heizungsart
Fußbodenheizung, Luft-/Wasser-Wärmepumpe
Details
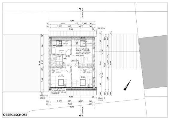
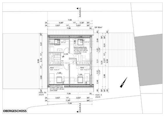
Objektbeschreibung
Diese massiv erbaute, moderne Doppelhaushälfte in ruhiger Lage von Eitting befindet sich aktuell im Bau und bietet Ihnen eine seltene Gelegenheit: Sie können aktiv Einfluss auf viele Details der Innenausstattung nehmen. Ob Bodenbeläge, Fliesendesign, Lichtplanung oder Raumaufteilung - je früher Sie sich entscheiden, desto...
Preisinformation
3 Carportplätze, Kaufpreis je: 8.000,00 EUR
Weitere Informationen
Stichworte
Carport vorhanden, Anzahl der Badezimmer: 3, Bundesland: Bayern, Lage im Wohngebiet
Sonstiges/Wohnen: Hobbyraum
Sonstiges: Keller als Wohnraum nutzbar
Anbieter der Immobilie
Skyline Real Estate Management GmbH
Friedrich-Fischer-Straße 14, 85435 Erding

Online-ID: 2k7sz5d
Referenznummer: Eitting
Finde Angebote wie dieses
Hier geht es zu unserem Impressum, den Allgemeinen Geschäftsbedingungen, den Hinweisen zum Datenschutz und nutzungsbasierter Online-Werbung.