
ImmoConceptBalear
Frau Nadja Schwinning
003 ···
Nr. anzeigenPreise & Kosten
Provision für Käufer
provisionsfrei
Lage
Canyamel ist ein kleiner Urlaubsort an der Ostküste Mallorcas, nur sechs Kilometer südlich von Cala Rajada und unweit der Tropfsteinhöhlen Coves d'Artà. Verwaltungstechnisch gehört er zur Gemeinde Capdepera.
Es handelt sich dabei um eine sehr ruhige und gefragte Wohngegend mit dem traumhaften Sandstrand Costa Canyamel...
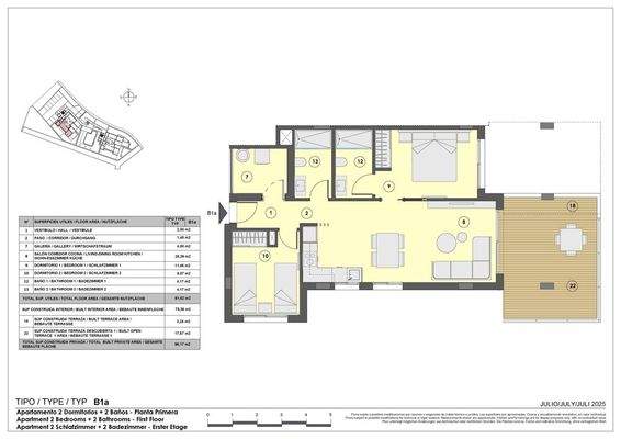
Die Wohnung
Wohnungslage
1. Geschoss
Bezug
01.04.2027
Wohnanlage
Energie & Heizung
Warum sehe ich diese Anzeige? – Du siehst diese Anzeige basierend auf Ihrer Navigation auf unserer Website und den Suchkriterien, die du verwendet hast.
Weitere Energiedaten
Heizungsart
Luft-/Wasser-Wärmepumpe
Details
Objektbeschreibung
In Canyamel entstehen derzeit bis April 2027 zwei exklusive Wohnblöcke mit insgesamt 14 Wohneinheiten.
Die Wohnanlage liegt nur 150m von einem traumhaften Strand mit kristallklarem und türkisfarbenem Wasser und ca. 1km vom Golfplatz entfernt.
Der nach Süd-Osten ausgerichtete Wohnkomplex wird über 4 verschiedene...
Ausstattung
-Einbauküche (Elektrogeräte optional)
-Hauswirtschaftsraum
-Bäder inkl. Bad Möbel, Spiegel und LED-Beleuchtung
-Klimaanlage warm/kalt (Luft-Wärmepumpe)
-Fußbodenheizung: Komplett in allen drei Schlafzimmer Wohnungen, optional bis 14.06.2026 auch in den 2 Schlafzimmerwohnungen, sonst nur in den...
Preisinformation
1 Stellplatz
Weitere Informationen
Sonstiges
Alle Angaben und Daten wie Maße und Zustand des Objektes wurden uns vom jeweiligen Eigentümer/Verkäufer bekannt gegeben. Eine Haftung für die Gewähr und Richtigkeit wird jedoch nicht übernommen. Das Angebot ist freibleibend. Irrtum und Zwischenvermietung bleiben vorbehalten.
Ihr Spezialist für Balearen...
Anbieter der Immobilie
ImmoConceptBalear
Passeig Illetes 4, 07181 Illetes-Calvia
Online-ID: 2k7w45w
Referenznummer: 4060
Finde Angebote wie dieses
Hier geht es zu unserem Impressum, den Allgemeinen Geschäftsbedingungen, den Hinweisen zum Datenschutz und nutzungsbasierter Online-Werbung.