
BRÜCKE-Immobilien e.K.
Herr/Frau Team BRÜCKE- Immobilien
035 ···
Nr. anzeigenPreise & Kosten
Provision für Käufer
3% zzgl. 19% MwSt.
Lage
Die angebotenen 3 Raumwohnungen befinden sich in der charmanten Stadt Görlitz, im Osten Deutschlands, bekannt für ihre gut erhaltene Architektur und kulturelle Vielfalt. Das Wohnobjekt liegt in einer bevorzugten Lage nahe dem malerischen Fluss, was sowohl Ruhe als auch eine angenehme Atmosphäre zum Leben bietet. Die Umgebung...
Die Wohnung
Wohnungslage
1. Geschoss
Wohnanlage
Energie & Heizung
Warum sehe ich diese Anzeige? – Du siehst diese Anzeige basierend auf Ihrer Navigation auf unserer Website und den Suchkriterien, die du verwendet hast.
Energieausweis: für diesen Gebäudetyp nicht notwendig
Weitere Energiedaten
Energieträger
Gas
Heizungsart
Zentralheizung
Details
Objektbeschreibung
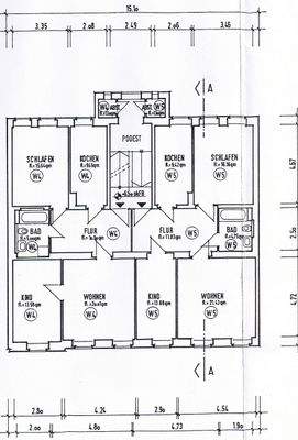
Zum Verkauf steht ein Wohnungspaket, welches aus 2 x 3 Raumwohnungen besteht. Die Wohnungen befinden sich in der 1. Etage eines gepflegten und historisch geprägten Mehrfamilienhauses und bieten somit die Möglichkeit, eine geräumige Etagenwohnung entstehen zu lassen.
Beide Wohnungen sind jeweils Straßen - sowie Hofseitig...
Weitere Informationen
Sonstiges
1. OG rechts vermietet seit 08/2024.
Der MEA beträgt 93,000stl.
Das mtl. zu begleichende Hausgeld beläuft sich auf 367,13 EUR.
1. OG links vermietet seit 06/2025.
Der MEA beträgt 91,000stl.
Das mtl. zu begleichende Hausgeld beläuft sich auf 292,93 €.
Besichtigungen können nach...
Anbieter der Immobilie
Online-ID: 2k82s5s
Referenznummer: Uferstr. 14 - 1. OG
Finde Angebote wie dieses
Hier geht es zu unserem Impressum, den Allgemeinen Geschäftsbedingungen, den Hinweisen zum Datenschutz und nutzungsbasierter Online-Werbung.