

Raum & Zeit Immobilien Treuhand GmbH
Herrn Josua Ambühl
077 ···
Nr. anzeigenPreise & Kosten
Provision für Käufer
2,5% zzgl. MwSt.
Lage
Breitenfeld, ein idyllisch gelegener Ortsteil von Tiengen, Waldshut-Tiengen, bietet eine perfekte Kombination aus Natur und Ruhe sowie einer hervorragenden Anbindung an städtische Infrastrukturen. Die ruhige, naturnahe Lage macht Breitenfeld ideal für Menschen, die das Leben im Grünen schätzen, ohne auf die Nähe zu...
Das Haus
Baujahr
2005
Energie & Heizung
Warum sehe ich diese Anzeige? – Du siehst diese Anzeige basierend auf Ihrer Navigation auf unserer Website und den Suchkriterien, die du verwendet hast.
Weitere Energiedaten
Energieträger
Gas
Heizungsart
Fußbodenheizung
Details
Objektbeschreibung
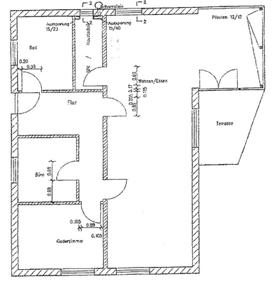
Wohnung im Stil eines Hauses - Breitenfeld / Tiengen
Diese großzügige Maisonette-Wohnung, gelegen in einem Zweifamilienhaus in Breitenfeld, bietet auf 180 m² Wohnfläche und zwei Etagen ein Zuhause mit unverwechselbarem Hauscharakter. Die Kombination aus Weitblick auf die umliegende Natur und den Komfort eines modernen...
Anbieter der Immobilie
Raum & Zeit Immobilien Treuhand GmbH
Hauptstr. 2, 79793 Wutöschingen

Online-ID: 2k84g5g
Finde Angebote wie dieses
Hier geht es zu unserem Impressum, den Allgemeinen Geschäftsbedingungen, den Hinweisen zum Datenschutz und nutzungsbasierter Online-Werbung.