

Hendricks-Immobilien
Herr David Hendricks
+49 ···
Nr. anzeigenPreise & Kosten
Provision für Käufer
1,79 inkl. MwSt.
1,79 % Käufercourtage vom Kaufpreis inklusive gesetzlicher Mehrwertsteuer
Lage
Das Zweifamilienhaus befindet sich im beliebten und ruhigem Ortsteil Anstel, welcher im Süden von Neuss angesiedelt ist und zur Gemeinde Rommerskirchen gehört.
Der Ort liegt etwa 20 km nordwestlich von Köln und etwa 20 km südwestlich von Düsseldorf, zwischen den Städten Grevenbroich, Dormagen und Pulheim an der...
Das Haus
Kategorie
Mehrfamilienhaus
Baujahr
1965
Bezug
Sofort
Energie & Heizung
Warum sehe ich diese Anzeige? – Du siehst diese Anzeige basierend auf Ihrer Navigation auf unserer Website und den Suchkriterien, die du verwendet hast.
Energieausweistyp
Bedarfsausweis
Gebäudetyp
Wohngebäude
Baujahr laut Energieausweis
1965
Wesentliche Energieträger
Gas
Gültigkeit
26.01.2022 bis 25.01.2032
Effizienzklasse
F
Endenergiebedarf
192,60 kWh/(m²·a)
Weitere Energiedaten
Haustyp
Massivhaus
Energieträger
Gas
Heizungsart
Zentralheizung
Details
Objektbeschreibung
Hier bietet sich Ihnen die Gelegenheit ein modernisiertes Zweifamilienhaus mit einem 716 qm großen Grundstück zu erwerben.
Das Haus befindet sich am Ende einer ruhigen Anliegerstraße, ohne Durchgangsverkehr, im beliebten Ortsteil Rommerskirchen Anstel.
Das Haus wurde in den letzten Jahren größtenteils...
Ausstattung
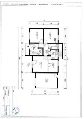
. Wohnfläche gesamt ca. 134 qm
. Nutzfläche ca. 70 qm
. Grundstück. 716 qm
. 6 Zimmer
. 2 Wohnungen (jeweils 3 Zimmer)
. Garage
. PKW Außenstellplatz
. Voll unterkellert
. Erneuerung Gasthermen je Wohnung 2021
. Erneuerung Fenster 2016 inkl. Rollos
. Dach...
Preisinformation
2 Stellplätze
1 Garagenstellplatz
Weitere Informationen
Sonstiges
Alle Angaben beruhen auf Informationen des Eigentümers. Für die Richtigkeit können wir keine Gewähr übernehmen.
Stichworte
Garage vorhanden, Stellplatz vorhanden, Nutzfläche: 70,00 m², Anzahl der Schlafzimmer: 4, Anzahl der Badezimmer: 2, Anzahl Balkone: 2, 2 Etagen, Lage im Ort, modernisiert: 2021...
Anbieter der Immobilie

Online-ID: 2k87m5u
Referenznummer: 7780#Oedhd
Finde Angebote wie dieses
Hier geht es zu unserem Impressum, den Allgemeinen Geschäftsbedingungen, den Hinweisen zum Datenschutz und nutzungsbasierter Online-Werbung.