

Addo Bauträger GmbH & Co. KG
Frau Alla Becker
041 ···
Nr. anzeigenPreise & Kosten
Provision für Käufer
provisionsfrei
Lage
Die Immobilie in Vor dem roten Tore 70 A, 21335 Lüneburg, besticht durch ihre ausgezeichnete Lage nahe der Lüneburger Innenstadt.
Sie kombiniert urbanen Komfort mit einem angenehmen Wohnumfeld. Dank der zentralen Lage sind Einkaufsmöglichkeiten, Restaurants und kulturelle Angebote schnell erreichbar. Gleichzeitig bietet...
Die Wohnung
Wohnungslage
3. Geschoss (Erdgeschoss)
Wohnanlage
Energie & Heizung
Warum sehe ich diese Anzeige? – Du siehst diese Anzeige basierend auf Ihrer Navigation auf unserer Website und den Suchkriterien, die du verwendet hast.
Weitere Energiedaten
Energieträger
Elektro
Haustyp
KfW 40
Heizungsart
Fußbodenheizung, Luft-/Wasser-Wärmepumpe, Zentralheizung
Details
Objektbeschreibung
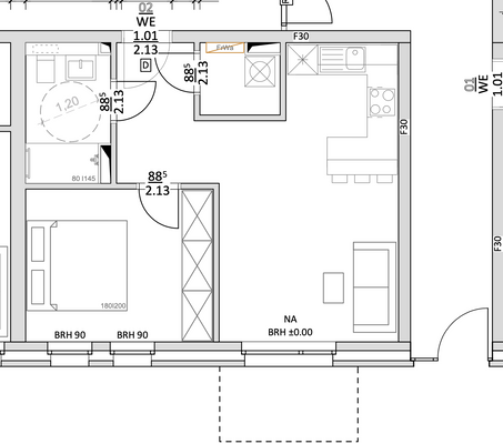
Mit 43,20 m2 Wohnfläche bietet diese Wohnung ein intelligentes Raumkonzept mit drei gut geschnittenen Zimmern. Die moderne Bauweise sorgt für eine energieeffiziente Wohnqualität und eine angenehme Atmosphäre. Große Fenster lassen viel Tageslicht herein und schaffen ein offenes Wohngefühl.
Ausstattung
Idealer Grundriss: großzügiger Wohn- und Schlafbereich, Badezimmer und zusätzlicher Abstellraum
Hochwertige Materialien von namhaften Herstellern wie: Geberit, Hans Grohe, Busch-Jaeger, Vallox und Samsung
Nachhaltiges Wohnen: Lüftungsanlage, Photovoltaikanlage, Wärmeluftpumpe
Weitere Informationen
Sonstiges
Neubauprojekt
Fertigstellung 2026
www.vordemrotentore.com
Energiequelle:
Solarenergie
Anbieter der Immobilie
Addo Bauträger GmbH & Co. KG
Bunsenstraße 8, 21365 Adendorf

Online-ID: 2k8du5p
Finde Angebote wie dieses
Hier geht es zu unserem Impressum, den Allgemeinen Geschäftsbedingungen, den Hinweisen zum Datenschutz und nutzungsbasierter Online-Werbung.