

Mosel Immobilien Center
Frau Mila Todorova
065 ···
Nr. anzeigenPreise & Kosten
Provision für Käufer
3,57 % inkl. UST
Lage
Die Immobilie befindet sich im ruhigen Moselörtchen Kövenig, einem Ortsteil von Kröv. Zwischen Traben-Trarbach und Reil gelegen (jeweils 4 km entfernt), besitzt Kövenig einen Bahnhof, der sich unmittelbar hinter der Immobilie befindet. Trotz Hochwasserlage erreichte das Wasser in den letzten 23 Jahren lediglich den...
Das Haus
Bezug
sofort
Energie & Heizung
Warum sehe ich diese Anzeige? – Du siehst diese Anzeige basierend auf Ihrer Navigation auf unserer Website und den Suchkriterien, die du verwendet hast.
Energieausweistyp
Bedarfsausweis
Gebäudetyp
Wohngebäude
Wesentliche Energieträger
Strom
Gültigkeit
bis 03.06.1935
Effizienzklasse
F
Weitere Energiedaten
Energieträger
Elektro
Details
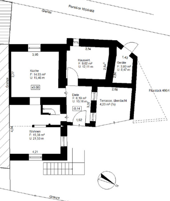
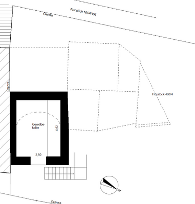
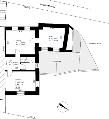
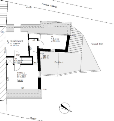
Objektbeschreibung
Dieses charmante Einfamilienhaus in massiver Bauweise vereint naturnahe Wohnqualität mit praktischer Bahnanbindung ins nahegelegene Traben-Trarbach. In direkter Mosellage gelegen, genießen Sie von allen Etagen einen unverbaubaren Panoramablick auf die Mosel - ein Highlight, das jeden Tag zu einem besonderen Erlebnis macht...
Ausstattung
- Massivbauweise mit Natursteinsockel und Außenputz
- Dacheindeckung Natur- und Kunstschiefer
- Nachtspeicherofen, Warmwasser über Durchlauferhitzer bzw. Boiler
- 2-fach verglaste Fenster (außer HWR und Hobbyraum)
- vorhandener Kaminanschluss
- Bodenfliesen im EG
- teilweise Massivholzdielen im 1. OG
-...
Weitere Informationen
Sonstiges
Die Höhe der Courtage richtet sich nach den ab dem 23.12.2020 in Kraft getretenen gesetzlichen Regelungen zur Teilung der Maklercourtage. Hiernach wird die Courtage regelmäßig für beide Parteien (Eigentümer und Käufer) fällig. Sie beträgt 3,57 % des Kaufpreises einschließlich Umsatzsteuer und wird mit notariellem...
Anbieter der Immobilie
Mosel Immobilien Center
Balduinstr. 73, 56856 Zell (Mosel)

Online-ID: 2k8gr5a
Referenznummer: 2520
Finde Angebote wie dieses
Hier geht es zu unserem Impressum, den Allgemeinen Geschäftsbedingungen, den Hinweisen zum Datenschutz und nutzungsbasierter Online-Werbung.