gjh e. K.

Jonathan Heldt

Büroflächen im Palais am Zoo

€ 16
Preis/m²
4 507 m²
Bürofläche ca.
ab 97 m²
Teilbare Fläche ca.
k.A.
Zimmer

Der Anbieter dieses Objekts hat gegenüber der AVIV Germany GmbH als Betreiber dieses Online-Marktplatzes erklärt, nicht als Unternehmer im Sinne des § 1 KSchG zu handeln. Die im Verbraucherschutzrecht der Union verankerten Verbraucherrechte (insbesondere Informationspflichten und Rücktritts- bzw. Widerrufsrechte) finden auf den Vertrag zwischen dem Anbieter des Objekts und Ihnen (dem Interessenten) keine Anwendung.

Provisionsfrei
Gewerblicher Anbieter

Der Anbieter dieses Objekts hat gegenüber der AVIV Germany GmbH als Betreiber dieses Online-Marktplatzes erklärt, als Unternehmer im Sinne des § 1 KSchG zu handeln.

AdresseEttlinger Straße 12-14
76137 Karlsruhe 
(Südweststadt)
Auf Karte ansehen

Preise & Kosten

Preis/m² € 16

Provision für Mieter

provisionsfrei

Lage

Das viergeschossige Bürogebäude befindet sich vis-a-vis zum Zoologischen Stadtgarten (Karlsruher Zoo) am Raiffeisenplatz und in fußläufiger Entfernung zum Hauptbahnhof. Es besteht eine sehr gute Anbindung an die Hauptverkehrsstraßen sowie an den ÖPNV.

Büro-/Praxisfläche

Kategorie

Bürofläche

  • renoviert / saniert

Energie & Heizung

Energieausweistyp

Bedarfsausweis

Gebäudetyp

Nicht-Wohngebäude

Weitere Energiedaten

Energieträger

Fernwärme

Details

Objektbeschreibung

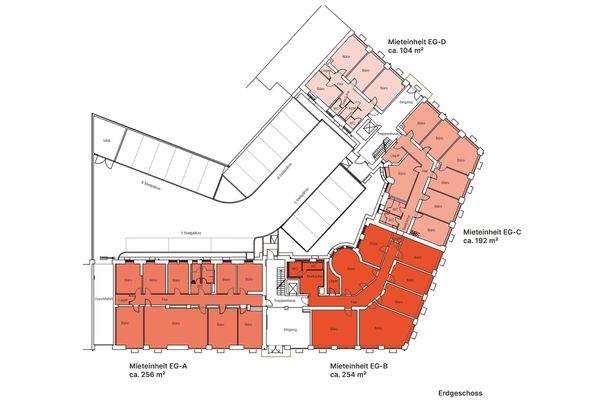
Zur Vermietung steht das gesamte Bürogebäude. Vom EG bis zum 3. OG befinden sich unterschiedlich große Büroeinheiten, welche auch einzeln angemietet werden können. Im Untergeschoss befinden sich Lagerflächen.
Die Gesamtmietfläche des Gebäudes beträgt (inkl. Lagerflächen) ca. 4.507 m².

Die Mietflächen teilen sich...

Mehr anzeigen

Anbieter der Immobilie

Partner

gjh e. K.

Ahaweg 2, 76131 Karlsruhe

user

Jonathan Heldt

Dein Ansprechpartner

Anbieter-Website Anbieter-Profil Anbieter-Impressum

Online-ID: 2k8ku5s

Referenznummer: 157614009

Finde Angebote wie dieses

imageimageimage

Hier geht es zu unserem Impressum, den Allgemeinen Geschäftsbedingungen, den Hinweisen zum Datenschutz und nutzungsbasierter Online-Werbung.