
Dorn Living Solutions Immobilien
Tom Dorn I Edith Voss
015 ···
Nr. anzeigenPreise & Kosten
Provision für Käufer
2,38% inkl. MwSt.
Käufer- und Verkäuferprovision, jeweils 2,38% inkl. MwSt. berechnet vom Kaufpreis, fällig und zahlbar bei Abschluss des notariellen Kaufvertrages.
Lage
Die Immobilie liegt am Ortsrand von Weinheim-Rippenweier, einem malerischen Ortsteil in Hanglage mit wunderbarem Blick über die Region. Die Umgebung ist geprägt von Natur, Ruhe und gewachsenem Wohnumfeld - ideal für alle, die naturnah und doch gut angebunden leben möchten.
Dank der Nähe zur A5 sind sowohl Heidelberg als...
Das Haus
Kategorie
Einfamilienhaus
Baujahr
2018
Bezug
nach Absprache
Energie & Heizung
Warum sehe ich diese Anzeige? – Du siehst diese Anzeige basierend auf Ihrer Navigation auf unserer Website und den Suchkriterien, die du verwendet hast.
Weitere Energiedaten
Energieträger
Elektro
Heizungsart
offener Kamin
Details
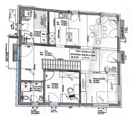
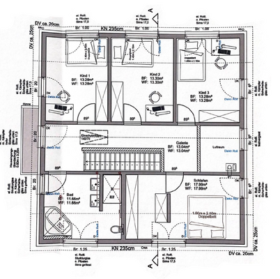
Objektbeschreibung
Erbaut im Jahr 2018, vereint das freistehende Einfamilienhaus architektonische Klarheit, durchdachte Raumkonzepte und ein hochwertiges Ausstattungspaket. Der Grundriss ist so durchdacht wie intuitiv: Bereiche für Wohnen, Schlafen und Entspannen sind klar gegliedert - mit fließenden Übergängen und viel Raum zur persönlichen...
Ausstattung
?? Offene Einbauküche mit Marken-Geräten und Bora-Abzugssystem
?? Kochinsel mit großzügiger Arbeitsfläche und Stauraum
?? Fußbodenheizung in allen Wohnräumen
?? Klimaanlage
?? Kamin im Wohnbereich
?? Galerie mit offenem Luftraum
?? Zwei Tageslichtbäder (Wanne & Dusche)
?...
Preisinformation
3 Garagenstellplätze
Weitere Informationen
Sonstiges
?? Lampen & Leuchten und weitere Einbauten können nach Absprache übernommen werden.
?? Der Energieausweis (Verbrauchsausweis) wurde 2018 ausgestellt und liegt zur Besichtigung vor.
?? Alle Angaben beruhen auf Informationen des Eigentümers - eine Haftung für die Richtigkeit wird...
Anbieter der Immobilie
Dorn Living Solutions Immobilien
Büttemerweg 3, 69493 Großsachsen
Online-ID: 2k8nv5z
Referenznummer: DLS 108
Finde Angebote wie dieses
Hier geht es zu unserem Impressum, den Allgemeinen Geschäftsbedingungen, den Hinweisen zum Datenschutz und nutzungsbasierter Online-Werbung.