

Immobilien Gallery GmbH
Herr Yashar Chinahkash
023 ···
Nr. anzeigenPreise & Kosten
Provision für Käufer
3,57% inkl. MwSt.
Lage
Das Objekt befindet sich in Bochum-Hordel, in einer ruhigen und familienfreundlichen Wohngegend mit guter Anbindung an die lokale Infrastruktur.
Das Haus
Kategorie
Einfamilienhaus
Baujahr
2003
Bezug
Sofort
Energie & Heizung
Warum sehe ich diese Anzeige? – Du siehst diese Anzeige basierend auf Ihrer Navigation auf unserer Website und den Suchkriterien, die du verwendet hast.
Energieausweistyp
Bedarfsausweis
Gebäudetyp
Wohngebäude
Baujahr laut Energieausweis
2003
Gültigkeit
09.12.2024 bis 08.12.2034
Effizienzklasse
D
Endenergiebedarf
126,20 kWh/(m²·a)
Weitere Energiedaten
Heizungsart
offener Kamin
Details
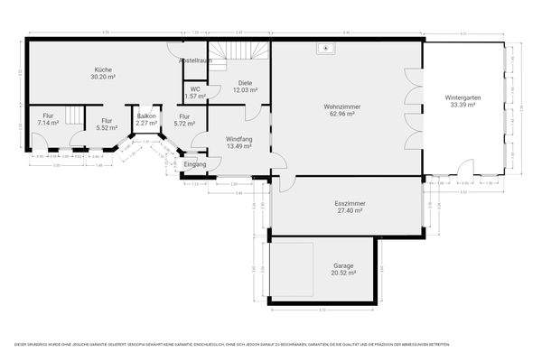
Objektbeschreibung
Das ursprünglich als Schmiede genutzte Gebäude wurde im Jahr 2003 aufwendig zu einem Einfamilienhaus umgebaut und bietet nun ca. 340 m² Wohnfläche auf einem 537 m² großen Grundstück. Ruhig und privat gelegen, befindet es sich hinter einem Mehrfamilienhaus und beeindruckt durch seine außergewöhnliche Raumaufteilung und...
Preisinformation
2 Stellplätze
1 Garagenstellplatz
Weitere Informationen
Stichworte
Stellplatz vorhanden, Anzahl der Schlafzimmer: 2, Anzahl der Badezimmer: 2, Anzahl der separaten WCs: 1, Anzahl Balkone: 1, Anzahl Terrassen: 1, modernisiert: 2021
Anbieter der Immobilie
Immobilien Gallery GmbH
Brückstraße 48, 44787 Bochum

Online-ID: 2k8qf5n
Referenznummer: EH0189#vubm1
Finde Angebote wie dieses
Hier geht es zu unserem Impressum, den Allgemeinen Geschäftsbedingungen, den Hinweisen zum Datenschutz und nutzungsbasierter Online-Werbung.