
Borchers & Aumann Immobilien Sulingen GbR
Herr Rudolf Aumann
042 ···
Nr. anzeigenPreise & Kosten
Provision für Käufer
Die Maklercourtage beträgt 5% zzgl. 19% Mwst. des notariellen Kaufpreises und ist vom Käufer und Verkäufer zu je 1/2 zu tragen.
Lage
Die Wohnung befindet sich im 2. Obergeschoss in einem Mehrfamilienhaus in einem schönen Wohngebiet von Sulingen.
Die Stadt Sulingen hat ca. 13.000 Einwohner und liegt sehr verkehrsgünstig inmitten des Städtedreiecks Bremen - Osnabrück - Hannover.
Nicht nur für die Einwohner, sondern auch für die Bürger der...
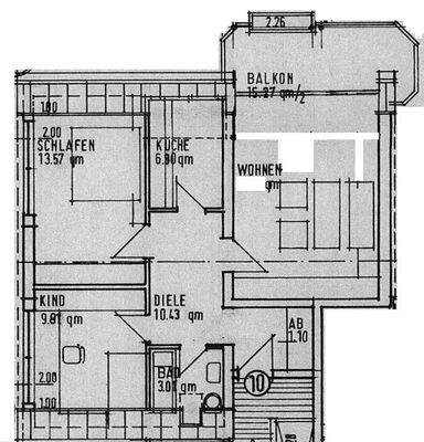
Die Wohnung
Wohnungslage
2. Geschoss
Wohnanlage
Energie & Heizung
Warum sehe ich diese Anzeige? – Du siehst diese Anzeige basierend auf Ihrer Navigation auf unserer Website und den Suchkriterien, die du verwendet hast.
Energieausweistyp
Verbrauchsausweis
Gebäudetyp
Wohngebäude
Baujahr laut Energieausweis
1984
Wesentliche Energieträger
Erdgas
Gültigkeit
26.05.2025 bis 25.05.2035
Effizienzklasse
D
Endenergieverbrauch
123,00 kWh/(m²·a)
Weitere Energiedaten
Energieträger
Gas
Heizungsart
Zentralheizung
Details
Objektbeschreibung
Die Wohnung verfügt über 3 Zimmer, eine Küche, ein Bad mit Dusche und Badewanne sowie einen Waschraum. Das gemütliche Schlafzimmer befindet sich im ausgebauten Dachboden. Direkt am Schlafzimmer befindet sich ein begehbarer Kleiderschrank/ Ankleideraum.
Vom Wohnzimmer gelangt man auf den Balkon. Das Fenster des...
Ausstattung
Alle Fenster sind aus Kunststoff und mit Rolladen versehen. Von innen sind alle Fenster mit Plissees ausgestattet.
Alle Türen in der Wohnung sind weiß (Holz in Stahlzarge) gestrichen.
Der Gebäudezustand entspricht den im Baujahr entsprechenden Standard.
Weitere Informationen
Besichtigungstermine
Für einen Besichtigungstermin setzen Sie sich bitte mit uns Verbindung. Gern senden wir Ihnen vorab ein Exposé zu.
Montag bis Freitag von 9.00 Uhr bis 13.00 Uhr
zusätzlich Montag, Dienstag u. Donnerstag von 14.00 Uhr bis 18.00 Uhr
Stichworte
Zustand: renoviert, gepflegt
Anbieter der Immobilie
Borchers & Aumann Immobilien Sulingen GbR
Am Wolfsbaum 6, 27232 Sulingen
Online-ID: 2k8ul56
Finde Angebote wie dieses
Hier geht es zu unserem Impressum, den Allgemeinen Geschäftsbedingungen, den Hinweisen zum Datenschutz und nutzungsbasierter Online-Werbung.