JA-Wohnen FlexCo

Frau Laura Mallegg

Stadthaus mit 2 Wohnungen und gut verpachtetem Restaurant "Bär und Schaf Wirtschaft" in Völkermarkt zu verkaufen!

€ 380.000
Kaufpreis
k.A.
Wohnfläche
k.A.
Zimmer
465 m²
Grundstücksfl. ca.
Finanzierung berechnen mit durchblicker

Der Anbieter dieses Objekts hat gegenüber der AVIV Germany GmbH als Betreiber dieses Online-Marktplatzes erklärt, nicht als Unternehmer im Sinne des § 1 KSchG zu handeln. Die im Verbraucherschutzrecht der Union verankerten Verbraucherrechte (insbesondere Informationspflichten und Rücktritts- bzw. Widerrufsrechte) finden auf den Vertrag zwischen dem Anbieter des Objekts und Ihnen (dem Interessenten) keine Anwendung.

Gewerblicher Anbieter

Der Anbieter dieses Objekts hat gegenüber der AVIV Germany GmbH als Betreiber dieses Online-Marktplatzes erklärt, als Unternehmer im Sinne des § 1 KSchG zu handeln.

AdresseStraße nicht freigegeben
9100 Völkermarkt 
Auf Karte ansehen

Preise & Kosten

Kaufpreis € 380.000

Provision für Käufer

3% des Kaufpreises zzgl. 20% USt.

Lage

Altstadt von Völkermarkt

Das Haus

Bezug

nach Absprache

  • Terrasse, Balkon
  • 3 Stellplätze
  • Böden: Holzdielen, Fliesenboden, Laminat, Steinboden

Energie & Heizung

Weitere Energiedaten

Haustyp

Massivhaus

Energieträger

Fernwärme

Details

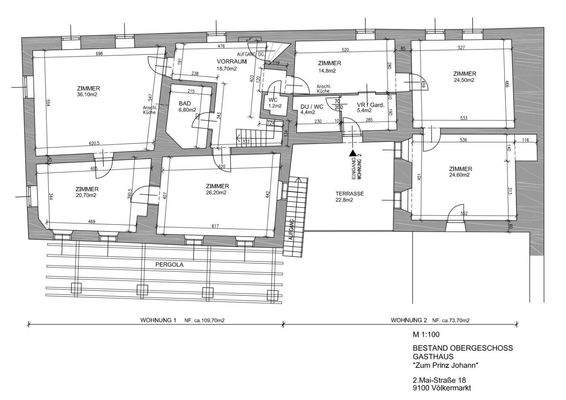
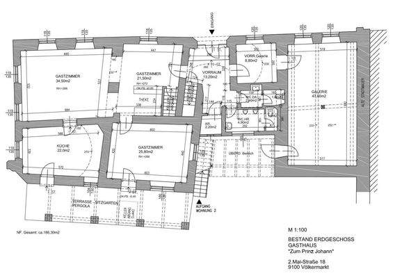
Objektbeschreibung

Dieses einzigartige Gebäude sucht einen neuen Eigentümer der seine lange Geschichte, die bis ins Mittelalter zurück reicht, zu schätzen weiß und dessen Kultur und Glanz erhält.

Die Liegenschaft besteht aus _2 Wohnungen im Obergeschoss_ und einem traditionellen, gut etablierten _Kulturgasthof_ _mit Galerie_ _im...

Mehr anzeigen

Preisinformation

3 Stellplätze

Weitere Informationen

Stichworte
Stellplatz vorhanden, Anzahl Balkone: 1, Anzahl Terrassen: 1, Bundesland: Kärnten, 2 Etagen, modernisiert: 2020

Anbieter der Immobilie

Partner

JA-Wohnen FlexCo

Birkengasse 4, 9020 KLAGENFURT

user

Frau Laura Mallegg

Dein Ansprechpartner

Anbieter-Profil Anbieter-Impressum

Online-ID: 2k8uz5h

Referenznummer: OBGC20240313092305549de4703340c

Finde Angebote wie dieses

imageimageimage

Günstige Immobilienfinanzierung einfach online berechnen

Persönliches Angebot berechnen

Hier geht es zu unserem Impressum, den Allgemeinen Geschäftsbedingungen, den Hinweisen zum Datenschutz und nutzungsbasierter Online-Werbung.