


1 / 41



1 / 41
Haus zum Kauf715000 €715.000 €2.871 €/m²8 Zimmer • 249 m² • 1.918 m² Grundstück
715000 €715.000 €
2.871 €/m²
8 Zimmer • 249 m² • 1.918 m² Grundstück
Eine großartige, parkähnliche Liegenschaft mit charmantem Zweifamilienwohnhaus und Doppelgarage !
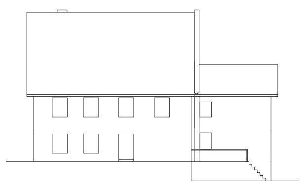
Direkt in Schopfheim, in guter Lage, circa 900 m vom Stadtzentrum entfernt, erwartet Sie ein Grundstück mit einer Gesamtgröße von 1.918 m². Die eher unscheinbare, von der Straße her, teilweise hinter einer Hecke und Büschen verborgene Liegenschaft, überrascht mit einer sehr großen, parkähnlichen, schön angelegten Fläche hinter dem Haus. Auch die südliche und westliche Flurstückgrenzen werden durch Büsche und höhere Bäume eingefasst. Das nordöstliche Nachbarhaus ist auf die Grenze gebaut und schneidet das zum Verkauf stehende Zweifamilienwohnhaus an einem östlichen Grenzpunkt. Dadurch entsteht ein ruhiger, zurückgesetzter Grundstücksbereich. Hier lassen sich garantiert unvergessliche Familienfeste feiern. Ein wirklicher Wow-Effekt.
Das Zweifamilienwohnhaus wurde 1816 errichtet, 1979/1980 mit einem Anbau erweitert und im Lauf der letzten Jahre in einigen Bereichen gut modernisiert. Die angebaute, massive Doppelgarage mit Dachterrasse wurde 2001 genehmigt. Aufgrund der leichten Hanglage konnte das Untergeschoss des Wohnhauses, in westlicher Richtung, teilweise außerhalb des Erdreichs hergestellt werden. Dadurch erreichen Sie die Kellerräume des Untergeschosses teilweise ebenerdig, direkt von außen. Der Haupteingang zur praktischen Erdgeschosswohnung befindet sich auf der nördlichen Gebäudeseite. Das Wohnhaus ist in diesem Bereich direkt auf die Grundstücksgrenze bebaut. Der Zugang ist über ein Geh- und Fahrrecht beziehungsweise Wegerecht geregelt. Im Ober- und Dachgeschoss des Wohnhauses ist eine gemütliche Maisonette Wohnung eingebaut. Der Zugang zum Obergeschoss erfolgt über eine massive Außentreppe zwischen Wohnhaus und Garage. Hier befindet sich auch die großartige Dachterrasse. Über die Lager- und Abstellfläche im Dachgeschoss erreichen Sie den hohen, ursprünglichen Spitzboden des Hauses.
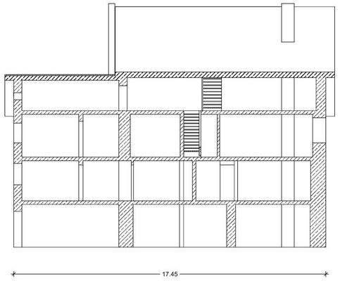
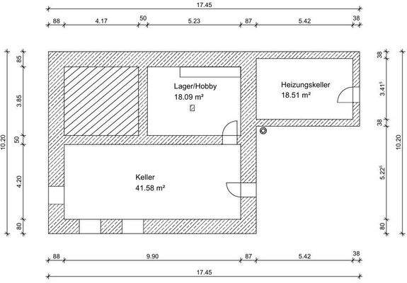
Das teilunterkellerte Untergeschoss besteht im Anbau aus einem Heizungskeller. Dieser separat zugängliche Bereich wird von den aktuellen Eigentümern auch als kleine Hobbywerkstatt genutzt. Über einen weiteren separaten Kellereingang erreichen Sie einen sehr großen und ursprünglichen Kellerraum mit Natursteinboden sowie einen weiteren ausgebauten Raum.
Die abgeschlossene Erdgeschosswohnung verfügt über einen eigenen Hauseingang, einen offenen Flur, der in den gut dimensionierten Wohn-, Ess- und Küchenbereich übergeht, ein Schlafzimmer, ein Kinderzimmer, ein weiterer Flur, ein Bad und ein Gäste-WC. Abgerundet wird die Erdgeschosswohnung durch zwei gemütliche Terrassenflächen, die in den rückwertigen Grundstücksbereich übergehen.
Die gemütliche Maisonette Wohnung umfasst einen separaten Hauseingang auf dem Obergeschossniveau, oberhalb der Doppelgarage, einen Flur mit Treppenaufgang ins Dachgeschoss, ein heller, offener Wohn- und Essbereich, eine tolle Küche, ein Schlafzimmer, ein weiterer Flur mit Anschluss an das Bad und das separate WC.
Im Dachgeschoss der Maisonette Wohnung stehen Ihnen ein Flur mit Treppenaufgang aus dem Obergeschoss, zwei gut dimensionierte Kinderzimmer und eine große, praktische Lagerfläche, im nicht ausgebauten Dachgeschoss des Haupthauses sowie des Anbaus, zur Verfügung. Ein großer Stauraum, der vielleicht auch teilweise, je nach Bedarf, noch ausgebaut werden kann.
Aus dem Lagerbereich des Dachgeschosses ist über eine Zugangstreppe der Spitzboden des Haupthauses zu erreichen. Hier ist ein hoher, nicht ausgebauter Raum vorhanden.
Die Maisonette Wohnung wird ergänzt durch die große Terrasse auf dem Dach der Doppelgarage. Ein wirklich praktischer Anbau. Im Erdgeschoss der Doppelgarage parken Sie Ihre Fahrzeuge und auf dem Dach erholen Sie sich vom Alltag. Die Terrasse ist baulich, mit Mauerwerk und Dachansätzen, so konzipiert, dass kaum Einblicke von außen möglich sind. Eine gemütliche, diskrete Fläche, die Sie genießen werden.
Das Zweifamilienwohnhaus verfügt, nach den vorliegenden Unterlagen, insgesamt über eine Wohn- und Nutzfläche, unter Berücksichtigung der Terrassenflächen, der Doppelgarage, der Kellerflächen und der Lagerflächen im Dachgeschoss und im Spitzboden, von circa 419 m². Davon entfällt auf die Erdgeschosswohnung eine Wohnfläche von rund 104 m² und auf die Maisonette Wohnung im Ober- und Dachgeschoss eine Wohnfläche von etwa 145 m². Eine sehr gute Größe für die gesamte Familie und bei Bedarf auch zur Teilvermietung.
Eine großartige Liegenschaft mit Wohlfühlgarantie und verschiedenen Optionen !
Insgesamt betrachtet ist die Liegenschaft gut in Stand gehalten und sehr gepflegt.
Die Erdgeschosswohnung wurde laut Angaben im Jahr 2005 umfassend modernisiert. Sie ist gut ausgestattet und verfügt über eine Einbauküche. Die Fenster sind zweifach isolierverglast. Abnutzungserscheinungen sind kaum zu erkennen. Die Wohnung kann, je nach Ihren eigenen Vorstellungen, direkt bezogen werden.
Die Maisonette Wohnung im Ober- und Dachgeschoss ist 2015 teilweise renoviert worden. Böden, Wände und Decken wurden im Obergeschoss überwiegend bearbeitet, das WC wurde modernisiert, das Bad entspricht den 1980er Jahren, einige der Fenster sind noch einfachverglast. Die Küche wurde ebenfalls modernisiert und die Einbauküche lässt keine Wünsche offen. Die Räumlichkeiten im Dachgeschoss entsprechen im Wesentlichen ebenfalls den 1980er Jahren. Auch hier kann die Wohneinheit, je nach Ihren eigenen Ansprüchen, direkt genutzt oder final durchmodernisiert werden.
Anzumerken ist, dass im Mauerwerk vereinzelt Setzungsrisse beziehungsweise Rissbildungen festzustellen sind. Im Spitzboden ist das ursprüngliche Dachgebälk sichtbar. Einige der Balken sollten überprüft werden. Die Gas-Zentralheizung stammt aus dem Jahr 1992. Sie ist in Stand gehalten und voll funktionsfähig.
Im Rahmen der Erstellung des aktuellen Energieausweises wurden vom Gebäudeenergieberater sowohl die Energiebedarfsberechnung als auch die Energieverbrauchsberechnung, nach der tatsächlichen aktuellen Nutzung, erstellt. Der berechnete Endenergiebedarf liegt bei der Bedarfsberechnung bei 318,6 kWh/(m² a) und der Endenergieverbrauch wird, bei den erfassten Verbrauchsdaten, mit 150,3 kWh/(m² a) ausgewiesen.
Sie haben die Möglichkeit eine gut gepflegte und gut in Stand gehaltene Immobilie mit großer Wohn- und Nutzfläche sowie einem tollen, großen Grundstück zu erwerben.
Ein attraktive Liegenschaft mit guter Bausubstanz !
Das Zweifamilienwohnhaus wurde 1816 errichtet, 1979/1980 mit einem Anbau erweitert und im Lauf der letzten Jahre in einigen Bereichen gut modernisiert. Die angebaute, massive Doppelgarage mit Dachterrasse wurde 2001 genehmigt. Aufgrund der leichten Hanglage konnte das Untergeschoss des Wohnhauses, in westlicher Richtung, teilweise außerhalb des Erdreichs hergestellt werden. Dadurch erreichen Sie die Kellerräume des Untergeschosses teilweise ebenerdig, direkt von außen. Der Haupteingang zur praktischen Erdgeschosswohnung befindet sich auf der nördlichen Gebäudeseite. Das Wohnhaus ist in diesem Bereich direkt auf die Grundstücksgrenze bebaut. Der Zugang ist über ein Geh- und Fahrrecht beziehungsweise Wegerecht geregelt. Im Ober- und Dachgeschoss des Wohnhauses ist eine gemütliche Maisonette Wohnung eingebaut. Der Zugang zum Obergeschoss erfolgt über eine massive Außentreppe zwischen Wohnhaus und Garage. Hier befindet sich auch die großartige Dachterrasse. Über die Lager- und Abstellfläche im Dachgeschoss erreichen Sie den hohen, ursprünglichen Spitzboden des Hauses.
Das teilunterkellerte Untergeschoss besteht im Anbau aus einem Heizungskeller. Dieser separat zugängliche Bereich wird von den aktuellen Eigentümern auch als kleine Hobbywerkstatt genutzt. Über einen weiteren separaten Kellereingang erreichen Sie einen sehr großen und ursprünglichen Kellerraum mit Natursteinboden sowie einen weiteren ausgebauten Raum.
Die abgeschlossene Erdgeschosswohnung verfügt über einen eigenen Hauseingang, einen offenen Flur, der in den gut dimensionierten Wohn-, Ess- und Küchenbereich übergeht, ein Schlafzimmer, ein Kinderzimmer, ein weiterer Flur, ein Bad und ein Gäste-WC. Abgerundet wird die Erdgeschosswohnung durch zwei gemütliche Terrassenflächen, die in den rückwertigen Grundstücksbereich übergehen.
Die gemütliche Maisonette Wohnung umfasst einen separaten Hauseingang auf dem Obergeschossniveau, oberhalb der Doppelgarage, einen Flur mit Treppenaufgang ins Dachgeschoss, ein heller, offener Wohn- und Essbereich, eine tolle Küche, ein Schlafzimmer, ein weiterer Flur mit Anschluss an das Bad und das separate WC.
Im Dachgeschoss der Maisonette Wohnung stehen Ihnen ein Flur mit Treppenaufgang aus dem Obergeschoss, zwei gut dimensionierte Kinderzimmer und eine große, praktische Lagerfläche, im nicht ausgebauten Dachgeschoss des Haupthauses sowie des Anbaus, zur Verfügung. Ein großer Stauraum, der vielleicht auch teilweise, je nach Bedarf, noch ausgebaut werden kann.
Aus dem Lagerbereich des Dachgeschosses ist über eine Zugangstreppe der Spitzboden des Haupthauses zu erreichen. Hier ist ein hoher, nicht ausgebauter Raum vorhanden.
Die Maisonette Wohnung wird ergänzt durch die große Terrasse auf dem Dach der Doppelgarage. Ein wirklich praktischer Anbau. Im Erdgeschoss der Doppelgarage parken Sie Ihre Fahrzeuge und auf dem Dach erholen Sie sich vom Alltag. Die Terrasse ist baulich, mit Mauerwerk und Dachansätzen, so konzipiert, dass kaum Einblicke von außen möglich sind. Eine gemütliche, diskrete Fläche, die Sie genießen werden.
Das Zweifamilienwohnhaus verfügt, nach den vorliegenden Unterlagen, insgesamt über eine Wohn- und Nutzfläche, unter Berücksichtigung der Terrassenflächen, der Doppelgarage, der Kellerflächen und der Lagerflächen im Dachgeschoss und im Spitzboden, von circa 419 m². Davon entfällt auf die Erdgeschosswohnung eine Wohnfläche von rund 104 m² und auf die Maisonette Wohnung im Ober- und Dachgeschoss eine Wohnfläche von etwa 145 m². Eine sehr gute Größe für die gesamte Familie und bei Bedarf auch zur Teilvermietung.
Eine großartige Liegenschaft mit Wohlfühlgarantie und verschiedenen Optionen !
Insgesamt betrachtet ist die Liegenschaft gut in Stand gehalten und sehr gepflegt.
Die Erdgeschosswohnung wurde laut Angaben im Jahr 2005 umfassend modernisiert. Sie ist gut ausgestattet und verfügt über eine Einbauküche. Die Fenster sind zweifach isolierverglast. Abnutzungserscheinungen sind kaum zu erkennen. Die Wohnung kann, je nach Ihren eigenen Vorstellungen, direkt bezogen werden.
Die Maisonette Wohnung im Ober- und Dachgeschoss ist 2015 teilweise renoviert worden. Böden, Wände und Decken wurden im Obergeschoss überwiegend bearbeitet, das WC wurde modernisiert, das Bad entspricht den 1980er Jahren, einige der Fenster sind noch einfachverglast. Die Küche wurde ebenfalls modernisiert und die Einbauküche lässt keine Wünsche offen. Die Räumlichkeiten im Dachgeschoss entsprechen im Wesentlichen ebenfalls den 1980er Jahren. Auch hier kann die Wohneinheit, je nach Ihren eigenen Ansprüchen, direkt genutzt oder final durchmodernisiert werden.
Anzumerken ist, dass im Mauerwerk vereinzelt Setzungsrisse beziehungsweise Rissbildungen festzustellen sind. Im Spitzboden ist das ursprüngliche Dachgebälk sichtbar. Einige der Balken sollten überprüft werden. Die Gas-Zentralheizung stammt aus dem Jahr 1992. Sie ist in Stand gehalten und voll funktionsfähig.
Im Rahmen der Erstellung des aktuellen Energieausweises wurden vom Gebäudeenergieberater sowohl die Energiebedarfsberechnung als auch die Energieverbrauchsberechnung, nach der tatsächlichen aktuellen Nutzung, erstellt. Der berechnete Endenergiebedarf liegt bei der Bedarfsberechnung bei 318,6 kWh/(m² a) und der Endenergieverbrauch wird, bei den erfassten Verbrauchsdaten, mit 150,3 kWh/(m² a) ausgewiesen.
Sie haben die Möglichkeit eine gut gepflegte und gut in Stand gehaltene Immobilie mit großer Wohn- und Nutzfläche sowie einem tollen, großen Grundstück zu erwerben.
Ein attraktive Liegenschaft mit guter Bausubstanz !
Merkmale
- Bezug: Nach Absprache, ab circa Herbst 2026
- 4 Geschosse
- 1.918 m² Grundstück
- Kelleranteil
- 2 Stellplätze: Garage
- Garten
- Terrasse
Grundrisse
Grundrisse
1 / 10
Realisiere Dein Projekt
Bausubstanz und Energie
Energieausweis
H
- Baujahr1816
- Zustand der ImmobilieGepflegt
- HeizungsartZentralheizung
Preisdetails
Kaufpreis
715000 €715.000 €
2.871,49 €/m²
Provision für Käufer
Das Erfolgshonorar beträgt 3,57 % inklusive gesetzlicher Mehrwertsteuer aus dem Kaufpreis.
Stephan Kuttler Immo Hyp 3Ländereck ist auch für den Verkäufer provisionspflichtig tätig und berechnet ein Erfolgshonorar in gleicher Höhe.
Stephan Kuttler Immo Hyp 3Ländereck ist auch für den Verkäufer provisionspflichtig tätig und berechnet ein Erfolgshonorar in gleicher Höhe.
Geschätzte Gesamtkosten
790.575 €1
Kaufpreis
715.000 €
Kaufnebenkosten
75.575 €
2Notarkosten (1,5%)
10.725 €
Grunderwerbsteuer (5%)
35.750 €
Provision für Käufer (3,57%)
25.525 €
Grundbucheintrag (0,5%)
3.575 €
1Der angezeigte Wert ist eine automatisch berechnete Schätzung von immowelt.
2Bei den Angaben handelt es sich um ortsübliche Werte. Individuelle Kosten können abweichen.
Lage

Schopfheim (79650)
Der Anbieter hat die genaue Adresse nicht freigegeben
Die Stadt Schopfheim mit den Ortsteilen Eichen, Enkenstein, Fahrnau, Gersbach, Kürnberg, Langenau, Raitbach und Wiechs liegt circa 25 km nordöstlich von Basel, im Dreiländereck Deutschland, Frankreich und der Schweiz.
Aktuell leben rund 20.200 Einwohner in Schopfheim. In der Stadt und teilweise auch in den Ortsteilen befinden sich Kindergärten, Grund- und Gemeinschaftsschulen, Privatschulen sowie ein Gymnasium. Sämtliche Einrichtungen des täglichen Bedarfs sind in Schopfheim und Umgebung sehr gut zu erreichen. Die nächsten größeren Städte im Umkreis von rund 20 bis 60 Autominuten sind Lörrach, Basel, Weil am Rhein, Mulhouse, Müllheim, Neuenburg, Freiburg sowie Rheinfelden, Bad Säckingen und Waldshut-Tiengen.
Die Stadt und ihre Umgebung verstehen sich als attraktiver kultureller Standort und wirtschaftliches Zentrum im Wiesental. Die Region wird wirtschaftlich überwiegend durch aufstrebende kleine und mittelständische Betriebe geprägt.
Die historische Altstadt mit ihren verwinkelten Gassen, dem Marktplatz, ihrer schönen Fußgängerzone, den Läden und Geschäften sowie den gemütlichen Cafés und Restaurants laden zum Bummeln und Einkaufen ein.
Mit der Regionalbahn (Basel - Zell im Wiesental) sind sehr gute Anbindungen nach Lörrach, Basel und Weil am Rhein vorhanden. Sowohl Schüler weiterführender Schulen, Berufstätige und insbesondere Grenzgänger schätzen dieses öffentliche Verkehrsmittel.
Die zum Verkauf stehende Liegenschaft befindet sich direkt in Schopfheim. Mit kurzen Wegen erreichen Sie bequem die tolle Innenstadt mit dem historischen Stadtkern, den Markplatz, das Krankenhaus sowie die Schulen- und Kindergärten. Durch die gute Verkehrsinfrastruktur sind die Anschlüsse zur Bundesstraße B 317 und zur Autobahn A 98 zügig erreichbar. Mit der Regionalbahnhaltestelle sind Sie auch ohne Auto schnell unterwegs.
Und die Freizeit ? Ob Wandern, Radfahren oder Kurzurlaub, die südlichen Ausläufer des Schwarzwalds, die Schweizer Bergwelt mit vielfältigen Naherholungsgebieten, Sport- und Freizeitangeboten oder das Markgräflerland mit seinen sonnigen Weinbergen liegen direkt vor der Haustüre.
Aber falls Sie, trotz der wunderschönen Region, auch mal das Fernweh packt, stehen Ihnen mit dem in rund 30 km erreichbaren Euro - Airport Basel / Mulhouse diverse nationale und internationale Anbindungen zur Verfügung.
Eine sehr schöne Lage mit kurzen Wegen nach Frankreich und in die Schweiz!
Aktuell leben rund 20.200 Einwohner in Schopfheim. In der Stadt und teilweise auch in den Ortsteilen befinden sich Kindergärten, Grund- und Gemeinschaftsschulen, Privatschulen sowie ein Gymnasium. Sämtliche Einrichtungen des täglichen Bedarfs sind in Schopfheim und Umgebung sehr gut zu erreichen. Die nächsten größeren Städte im Umkreis von rund 20 bis 60 Autominuten sind Lörrach, Basel, Weil am Rhein, Mulhouse, Müllheim, Neuenburg, Freiburg sowie Rheinfelden, Bad Säckingen und Waldshut-Tiengen.
Die Stadt und ihre Umgebung verstehen sich als attraktiver kultureller Standort und wirtschaftliches Zentrum im Wiesental. Die Region wird wirtschaftlich überwiegend durch aufstrebende kleine und mittelständische Betriebe geprägt.
Die historische Altstadt mit ihren verwinkelten Gassen, dem Marktplatz, ihrer schönen Fußgängerzone, den Läden und Geschäften sowie den gemütlichen Cafés und Restaurants laden zum Bummeln und Einkaufen ein.
Mit der Regionalbahn (Basel - Zell im Wiesental) sind sehr gute Anbindungen nach Lörrach, Basel und Weil am Rhein vorhanden. Sowohl Schüler weiterführender Schulen, Berufstätige und insbesondere Grenzgänger schätzen dieses öffentliche Verkehrsmittel.
Die zum Verkauf stehende Liegenschaft befindet sich direkt in Schopfheim. Mit kurzen Wegen erreichen Sie bequem die tolle Innenstadt mit dem historischen Stadtkern, den Markplatz, das Krankenhaus sowie die Schulen- und Kindergärten. Durch die gute Verkehrsinfrastruktur sind die Anschlüsse zur Bundesstraße B 317 und zur Autobahn A 98 zügig erreichbar. Mit der Regionalbahnhaltestelle sind Sie auch ohne Auto schnell unterwegs.
Und die Freizeit ? Ob Wandern, Radfahren oder Kurzurlaub, die südlichen Ausläufer des Schwarzwalds, die Schweizer Bergwelt mit vielfältigen Naherholungsgebieten, Sport- und Freizeitangeboten oder das Markgräflerland mit seinen sonnigen Weinbergen liegen direkt vor der Haustüre.
Aber falls Sie, trotz der wunderschönen Region, auch mal das Fernweh packt, stehen Ihnen mit dem in rund 30 km erreichbaren Euro - Airport Basel / Mulhouse diverse nationale und internationale Anbindungen zur Verfügung.
Eine sehr schöne Lage mit kurzen Wegen nach Frankreich und in die Schweiz!
Weitere Informationen
Und Ihre Finanzierung ?
Haben Sie sich schon mit Ihrer Finanzierung beschäftigt ?
Wir unterstützen Sie unabhängig, transparent und fachlich auf höchstem Niveau bei Ihrer Finanzierung.
Nutzen Sie unsere 25-jährige Finanzierungserfahrung !
Gerne bieten wir Ihnen eine unabhängige, transparente Finanzierungsberatung mit diversen Möglichkeiten an. Durch Anbindungen und Kontakte zu zahlreichen regionalen, überregionalen und Deutschlandweit tätigen Kreditinstituten verfügen wir über ein umfassendes Repertoire und können persönliche, individuelle Angebote für Sie zusammenstellen.
-Immobiliendarlehen mit Zinsgarantie bis zu 30 Jahren
-Öffentliche Förderkreditmittel
-CHF – Fremdwährungsdarlehen
-Bauspardarlehen
in den unterschiedlichsten Kombinationen sind für uns alltägliche Begrifflichkeiten.
Wir stellen Ihnen gerne ein, auf Ihre Wünsche abgestimmtes, Finanzierungskonzept zusammen und übernehmen die professionelle Kreditbeantragung bei den gemeinsam ausgewählten Kreditinstituten.
Damit verbinden Sie Kauf und Finanzierung optimal, zentral aus einer Hand und sichern sich unsere umfassende Expertise sowie eine zuverlässige und transparente Umsetzung Ihrer Wünsche und Ziele.
Der Mittelpunkt unserer Tätigkeit sind Sie. Wir stehen Ihnen langfristig zur Verfügung.
Melden Sie sich einfach und wir tauschen uns sehr gerne aus!
Wir unterstützen Sie unabhängig, transparent und fachlich auf höchstem Niveau bei Ihrer Finanzierung.
Nutzen Sie unsere 25-jährige Finanzierungserfahrung !
Gerne bieten wir Ihnen eine unabhängige, transparente Finanzierungsberatung mit diversen Möglichkeiten an. Durch Anbindungen und Kontakte zu zahlreichen regionalen, überregionalen und Deutschlandweit tätigen Kreditinstituten verfügen wir über ein umfassendes Repertoire und können persönliche, individuelle Angebote für Sie zusammenstellen.
-Immobiliendarlehen mit Zinsgarantie bis zu 30 Jahren
-Öffentliche Förderkreditmittel
-CHF – Fremdwährungsdarlehen
-Bauspardarlehen
in den unterschiedlichsten Kombinationen sind für uns alltägliche Begrifflichkeiten.
Wir stellen Ihnen gerne ein, auf Ihre Wünsche abgestimmtes, Finanzierungskonzept zusammen und übernehmen die professionelle Kreditbeantragung bei den gemeinsam ausgewählten Kreditinstituten.
Damit verbinden Sie Kauf und Finanzierung optimal, zentral aus einer Hand und sichern sich unsere umfassende Expertise sowie eine zuverlässige und transparente Umsetzung Ihrer Wünsche und Ziele.
Der Mittelpunkt unserer Tätigkeit sind Sie. Wir stehen Ihnen langfristig zur Verfügung.
Melden Sie sich einfach und wir tauschen uns sehr gerne aus!
Weitere Services
Lust auf eine Besichtigung?
Eine Frage zur Immobilie?
Über den Anbieter
Immo Hyp 3LändereckMaklerbüro
Im Hofacker 8, 79585 Steinen
Partnerschaft

Herr Stephan KuttlerDein Kontakt
Online-ID: 2k92f5p
Referenznummer: 79650/3


Immo Hyp 3Ländereck
5/5Bewertung: 5 von 5 Sternen
Wie zufrieden bist du mit dieser Seite (nicht mit der Immobilie selbst)?