

VON POLL REAL ESTATE
Firma VON POLL REAL ESTATE BOZEN / MAILAND
+39 ···
Nr. anzeigenPreise & Kosten
Provision für Käufer
Provisionspflichtig
Lage
Malcesine befindet sich am Ostufer des Gardasees, direkt am Fuße des Monte Baldo gelegen. Rund 4.000 Menschen leben in der Gemeinde, deren Silhouette von der Skaligerburg dominiert wird, welche einen sehr wichtigen Teil der Geschichte von Malcesine bildet. Die von den umliegenden Bergen und dem sanften Ufer des Sees geprägte...
Das Haus
Kategorie
Einfamilienhaus
Geschosse
2 Geschosse
Derzeitige Nutzung
frei
Energie & Heizung
Warum sehe ich diese Anzeige? – Du siehst diese Anzeige basierend auf Ihrer Navigation auf unserer Website und den Suchkriterien, die du verwendet hast.
Energieausweistyp
Bedarfsausweis
Gebäudetyp
Wohngebäude
Wesentliche Energieträger
GAS
Gültigkeit
bis 01.07.2034
Effizienzklasse
D
Endenergiebedarf
90,00 kWh/(m²·a)
Weitere Energiedaten
Energieträger
Gas
Heizungsart
Fußbodenheizung, offener Kamin
Details
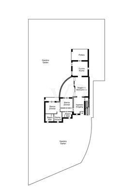
Objektbeschreibung
Entdecken Sie diese freistehende Villa in einer der prestigeträchtigsten Lagen von Malcesine. Nur wenige Schritte vom charmanten Ortszentrum entfernt, bietet dieses Anwesen sowohl Ruhe als auch bequemen Zugang zu allen Annehmlichkeiten.
Die Villa bietet eine hohe Privatsphäre. Das Haus ist von einem flachen Grundstück...
Weitere Informationen
Stichworte
Nutzfläche: 375,00 m², Anzahl der Schlafzimmer: 2, Anzahl der Badezimmer: 2, Anzahl Terrassen: 2, 2 Etagen, Distanz zur Autobahn: 42.00, Distanz vom Zentrum: 0.50
Anbieter der Immobilie
VON POLL REAL ESTATE
Drususalle 265, 39100 BOZEN (BZ)

Online-ID: 2k93m5e
Referenznummer: IT 25 492 2167
Finde Angebote wie dieses
Hier geht es zu unserem Impressum, den Allgemeinen Geschäftsbedingungen, den Hinweisen zum Datenschutz und nutzungsbasierter Online-Werbung.