
Cord Lindhorst GmbH
Frau Dagmar Ebling
+49 ···
Nr. anzeigenPreise & Kosten
Provision für Käufer
Käufer und Verkäufer zahlen jeweils 3,57 % inklusive der gesetzlichen MwSt.
Lage
Die Hasberger Straße befindet sich im ruhigen und familienfreundlichen Stadtteil Schafkoven/Donneresch im Norden von Delmenhorst. Es handelt sich überwiegend um eine verkehrsberuhigte Anliegerstraße mit einer Geschwindigkeitsbegrenzung von 30?km/h - ideal für ein sicheres und angenehmes Wohnumfeld.
Die Anbindung an den...
Das Haus
Baujahr
1936
Derzeitige Nutzung
frei
Energie & Heizung
Warum sehe ich diese Anzeige? – Du siehst diese Anzeige basierend auf Ihrer Navigation auf unserer Website und den Suchkriterien, die du verwendet hast.
Energieausweistyp
Bedarfsausweis
Gebäudetyp
Wohngebäude
Baujahr laut Energieausweis
1936
Gültigkeit
16.07.2025 bis 15.07.2035
Effizienzklasse
H
Endenergiebedarf
273,20 kWh/(m²·a)
Weitere Energiedaten
Haustyp
Massivhaus
Energieträger
Gas
Details
Objektbeschreibung
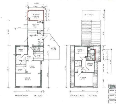
Dieses Einfamilienhaus wurde im Jahr 1936 auf einem ca. 897 m² großen Grundstück errichtet und bietet mit einer Wohnfläche von ca. 107,33 m² ausreichend Platz für Familien, Paare oder kreative Gestalter.
Der Grundriss verteilt sich auf vier vollwertige Zimmer sowie drei halbe Zimmer - ideal nutzbar als Arbeits-, Gäste-...
Preisinformation
1 Garagenstellplatz
Weitere Informationen
Sonstiges
Hinweis:
Unsere Objektangaben beruhen auf den Informationen, die uns vom Eigentümer oder Dritten zur Verfügung gestellt wurden. Für die Richtigkeit und Vollständigkeit übernehmen wir keine Haftung.
Besichtigungstermine:
Für Besichtigungsanfragen bitten wir Sie, das Kontaktformular vollständig...
Anbieter der Immobilie
Cord Lindhorst GmbH
Oldenburger Str.62, 27753 Delmenhorst
Online-ID: 2k9br5s
Referenznummer: 792 (1/792)
Finde Angebote wie dieses
Hier geht es zu unserem Impressum, den Allgemeinen Geschäftsbedingungen, den Hinweisen zum Datenschutz und nutzungsbasierter Online-Werbung.