
Aigner Immobilien GmbH
Frau Katrin Neugebauer
+49 ···
Nr. anzeigenPreise & Kosten
Provision für Käufer
3,57% inkl. MwSt.
Die Käuferprovision beträgt 3,57% inkl. gesetzlicher Mehrwertsteuer vom wirtschaftlichen Kaufpreis. Unsere Angebote erfolgen freibleibend und unverbindlich. Irrtum und Zwischenverkauf bleiben vorbehalten.
Lage
Laim - urban, charmant und grün
! Der Stadtteil Laim im Münchner Westen zählt zu den vielseitigsten Wohnlagen der bayerischen Landeshauptstadt. Ursprünglich ein Dorf, hat sich Laim im Laufe der Jahre zu einem urbanen und zugleich charmanten Viertel entwickelt, das besonders für seine Mischung aus städtischem Leben und...
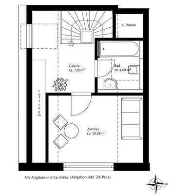
Die Wohnung
Wohnungslage
Dachgeschoss
Bezug
Ab Sofort
Wohnanlage
Energie & Heizung
Warum sehe ich diese Anzeige? – Du siehst diese Anzeige basierend auf Ihrer Navigation auf unserer Website und den Suchkriterien, die du verwendet hast.
Energieausweistyp
Bedarfsausweis
Gebäudetyp
Wohngebäude
Baujahr laut Energieausweis
2000
Gültigkeit
bis 06.01.2035
Endenergiebedarf
25,40 kWh/(m²·a)
Weitere Energiedaten
Energieträger
Elektro
Heizungsart
Zentralheizung
Details
Objektbeschreibung
In zweiter Reihe, hinter einem gepflegten Vorderhaus gelegen, befindet sich diese außergewöhnliche Maisonettewohnung direkt gegenüber dem Agricolapark und damit eingebettet in den urbanen wie charmanten Stadtteil Laim. Auf rund 87 m² Wohnfläche, verteilt auf zwei lichtdurchflutete Ebenen, bietet diese Immobilie ein ganz...
Ausstattung
. Zentrale Lage gegenüber dem Agricola-Park
. Gute Anbindung an den öffentlichen Nahverkehr und perfekte Infrastruktur
. Gepflegtes Mehrfamilienhaus Baujahr 2000
. Großzügiger, heller Wohnbereich mit hoher Decke, bodentiefe Fenster in allen Wohnräumen
. Südterrasse und Ostbalkon bieten ganztägig Sonne und...
Preisinformation
1 Garagenstellplatz, Kaufpreis: 21.000,00 EUR
Weitere Informationen
Sonstiges
Heizungsart: Wärmepumpe
Befeuerung/Energieträger: Strom
Energieausweistyp: Bedarfsausweis
Energiekennwert: 25,4 kWh/(m²*a)
Energieeffizienzklasse: A+
Baujahr: 2000
Mehr Bilder und Infos hier - https://aigner-immobilien.de/objekt/ID-41984/
Kostenlose Online-Bewertung -...
Anbieter der Immobilie
Aigner Immobilien GmbH
Ruffinistraße 26, 80637 München
Online-ID: 2k9df5h
Referenznummer: 41984
Finde Angebote wie dieses
Hier geht es zu unserem Impressum, den Allgemeinen Geschäftsbedingungen, den Hinweisen zum Datenschutz und nutzungsbasierter Online-Werbung.