
teba Tettnanger Bau-und Betreuungs GmbH & Co. KG
Herr H. Kußmaul
075 ···
Nr. anzeigenPreise & Kosten
Provision für Käufer
provisionsfrei
Lage
Lagebeschreibung
Wohnen in bester Lage – zentral, gut angebunden und mit gewachsenem Umfeld
Diese attraktive Wohnadresse überzeugt nicht nur durch ihre zentrale und zugleich ruhige Lage, sondern auch durch ein gewachsenes Wohnumfeld mit hoher Lebensqualität.
Alle Dinge des täglichen Bedarfs befinden sich in...
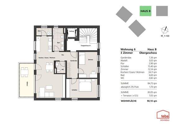
Die Wohnung
Wohnungslage
1. Geschoss (Erdgeschoss)
Bezug
2026
Derzeitige Nutzung
frei
Wohnanlage
Energie & Heizung
Warum sehe ich diese Anzeige? – Du siehst diese Anzeige basierend auf Ihrer Navigation auf unserer Website und den Suchkriterien, die du verwendet hast.
Weitere Energiedaten
Heizungsart
Fußbodenheizung
Details
Weitere Informationen
Wohnkonzept
Zeitgemäß wohnen – für jedes Lebensmodell das passende Zuhause
Das durchdachte Wohnkonzept verbindet moderne Architektur mit hohem Wohnkomfort und schafft ein angenehmes Wohnklima – ideal für Singles, Paare, Familien oder Menschen im besten Alter.
Im Erdgeschoss wohnen Sie fast im Grünen: Genießen...
Anbieter der Immobilie
teba Tettnanger Bau-und Betreuungs GmbH & Co. KG
Graf-Eberhard-Straße 14, 88069 Tettnang
Online-ID: 2k9fc5v
Finde Angebote wie dieses
Hier geht es zu unserem Impressum, den Allgemeinen Geschäftsbedingungen, den Hinweisen zum Datenschutz und nutzungsbasierter Online-Werbung.