
HK Immobilienmanagement für Handel und Gewerbe
Herr Hans Kössinger
056 ···
Nr. anzeigenPreise & Kosten
Kaution
2 Nettomonatsmieten
Provision für Mieter
2,38 Nettomonatsmieten inkl. MwSt.
Warum sehe ich diese Anzeige? – Du siehst diese Anzeige basierend auf Ihrer Navigation auf unserer Website und den Suchkriterien, die du verwendet hast.
Lage
Die gesamte Gewerbeliegenschaft befindet sich an der vielbefahrenen Lilienthalstraße
im östlichen Bereich Kassels. Viele namhafte Unternehmen wir VW, Bode-die Tür,
ein Unternehmenspark, und viele Andere nutzen die interessante Lage.
Kurze Weg zur BAB A7 und A44, sowie auch eine gute Anbindung an die Kasseler...
Büro-/Praxisfläche
Bezug
01.09.2029
Energie & Heizung
Warum sehe ich diese Anzeige? – Du siehst diese Anzeige basierend auf Ihrer Navigation auf unserer Website und den Suchkriterien, die du verwendet hast.
Weitere Energiedaten
Energieträger
Elektro, Gas
Heizungsart
Zentralheizung
Details
Objektbeschreibung
Objektbeschreibung
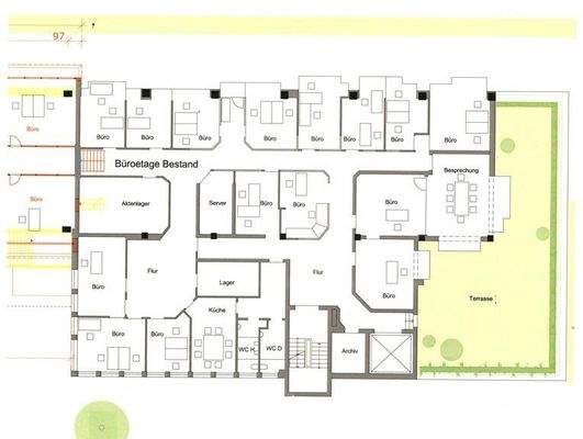
Diese interessante Büro-oder Praxisetage befindet sich im Hochpaterre einer
Gewerbeliegenschaft, die derzeit neu besetzt wird. Auf gleichem Level entsteht
nebenan eine Tierklinik mit ca. 1.100 m² Gesamtnutzfläche.
Die Etage mit ca. 550 m² Grundfläche besteht aus ca. 16 größeren und kleineren...
Weitere Informationen
Stichworte
Zustand: renoviert, gepflegt
Sonstiges: EDV-Arbeitsplatzbeleuchtung, Getrennte Damen- und Herren-WCs, frei werdend
Anbieter der Immobilie
Online-ID: 2k9jd58
Referenznummer: BP01062025
Finde Angebote wie dieses
Hier geht es zu unserem Impressum, den Allgemeinen Geschäftsbedingungen, den Hinweisen zum Datenschutz und nutzungsbasierter Online-Werbung.