

S-ImmobilienDienst der Sparkasse Bochum GmbH
Herr Andreas Martin
Kontaktiere den Anbieter schriftlich, es ist keine Telefonnummer hinterlegt.
Preise & Kosten
Provision für Käufer
Bitte beachte, das Angebot kann bei Vertragsabschluss die Zahlung einer Provision beinhalten. Weitere Informationen erhältst Du vom Anbieter.
Lage
Höntrop ist ein Ortsteil mit ca. 17.000 Einwohnern und einer der größten Stadtteile im Stadtbezirk Wattenscheid. Die angrenzenden Stadtteile sind Westenfeld, Sevinghausen und Eppendorf. In der Umgebung liegt der Essener Stadtteil Freisenbruch. Der Südpark und die Grünanlage "Saure Wiesen" laden zu langen Spaziergängen ein...
Das Haus
Kategorie
Reihenendhaus
Baujahr
2026
Energie & Heizung
Warum sehe ich diese Anzeige? – Du siehst diese Anzeige basierend auf Ihrer Navigation auf unserer Website und den Suchkriterien, die du verwendet hast.
Energieausweistyp
Bedarfsausweis
Gebäudetyp
Wohngebäude
Baujahr laut Energieausweis
2026
Wesentliche Energieträger
LUFTWP
Gültigkeit
bis 28.06.2034
Effizienzklasse
A+
Endenergiebedarf
17,89 kWh/(m²·a)
Weitere Energiedaten
Haustyp
Massivhaus
Heizungsart
Fußbodenheizung, Luft-/Wasser-Wärmepumpe
Details
Objektbeschreibung
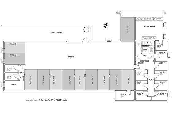
Die Vorteile eines Hauses mit separatem Zugang, über zwei Ebenen mit eigener Treppe und kleinem Gartenanteil, gepaart mit den Vorteilen eines modernen Mehrfamilienhauses mit Tiefgarage, Waschkeller und Kellerräumen. Diese Wohnung im Charakter eine Reihenendhauses bietet Ihnen all das und so viel mehr. Familien und Paare...
Preisinformation
1 Tiefgaragenstellplatz, Kaufpreis: 27.900,00 EUR
Weitere Informationen
Stichworte
Anzahl der Schlafzimmer: 3, Anzahl der Badezimmer: 1, Anzahl der separaten WCs: 1, Anzahl Terrassen: 1, 2 Etagen, Wohnungsnr.: 1
Anbieter der Immobilie

S-ImmobilienDienst der Sparkasse Bochum GmbH

Herr Andreas Martin
Dein Ansprechpartner
Kontaktiere den Anbieter schriftlich, es ist keine Telefonnummer hinterlegt.
Online-ID: 2k9jy5y
Referenznummer: 16438_01
Finde Angebote wie dieses
Hier geht es zu unserem Impressum, den Allgemeinen Geschäftsbedingungen, den Hinweisen zum Datenschutz und nutzungsbasierter Online-Werbung.