
s REAL Immobilienvermittlung GmbH
Herr Mario Reinsperger
+43 ···
Nr. anzeigenPreise & Kosten
Provision für Käufer
3% des Kaufpreises zzgl. 20% USt.
Das Haus
Baujahr
1923
Bezug
ab sofort
Energie & Heizung
Warum sehe ich diese Anzeige? – Du siehst diese Anzeige basierend auf Ihrer Navigation auf unserer Website und den Suchkriterien, die du verwendet hast.
Heizwärmebedarf (HWB)
368,20 kWh/(m²·a)
Gesamtenergieeffizienz (fGEE)
4,77
Weitere Energiedaten
Energieträger
Gas
Heizungsart
Zentralheizung
Details
Objektbeschreibung
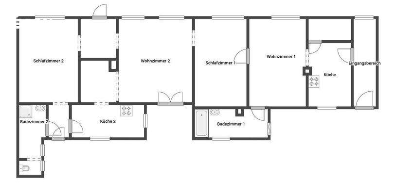
Willkommen in Ihrem zukünftigen Eigenheim in Stockerau, Niederösterreich. Dieses charmante Einfamilienhaus bietet Ihnen die perfekte Kombination aus gemütlichem Wohnen auf einer Ebene und den Annehmlichkeiten eines wunderschön angelegten Grundstückes mit ca. 863 m².
Mit einer derzeitigen Wohnfläche von ca. 117 m² und 4...
Preisinformation
1 Garagenstellplatz
Weitere Informationen
Stichworte
Garage vorhanden, Rolladen, Anzahl der Badezimmer: 2, Anzahl der separaten WCs: 2, Gartenfläche: 668,00 m², Bundesland: Niederösterreich, modernisiert: 1983
Anbieter der Immobilie
s REAL Immobilienvermittlung GmbH
Landstraßer Hauptstraße 60, 1030 WIEN
Online-ID: 2k9ka57
Referenznummer: OBGC202505281314509133e4f4fce06
Finde Angebote wie dieses
Günstige Immobilienfinanzierung einfach online berechnen
Persönliches Angebot berechnenWarum sehe ich diese Werbung? – Du siehst diese Werbung basierend auf Deiner Navigation auf unserer Website und der von Dir verwendeten Suchkriterien.
Diese Werbung wird bezahlt von durchblicker
Werbung melden
Hier geht es zu unserem Impressum, den Allgemeinen Geschäftsbedingungen, den Hinweisen zum Datenschutz und nutzungsbasierter Online-Werbung.