

Sparkasse Immobilien Bremen GmbH
Frau Martina Schneemann
042 ···
Nr. anzeigenPreise & Kosten
Provision für Käufer
3,57 % inkl. MwSt.
Lage
Das hier angebotene Einfamilienhaus befindet sich in ruhiger Wohnlage des beliebten Stadtteils Oberneuland. Zahlreiche Einkaufsmöglichkeiten für den täglichen Bedarf, eine Apotheke sowie Boutiquen und Restaurants befinden sich in der nahe gelegenen Apfelallee und Mühlenfeldstraße bzw. in der näheren Umgebung. Eine...
Das Haus
Kategorie
Einfamilienhaus
Baujahr
1977
Bezug
Nach Absprache
Energie & Heizung
Warum sehe ich diese Anzeige? – Du siehst diese Anzeige basierend auf Ihrer Navigation auf unserer Website und den Suchkriterien, die du verwendet hast.
Energieausweistyp
Bedarfsausweis
Gebäudetyp
Wohngebäude
Baujahr laut Energieausweis
1977
Wesentliche Energieträger
Öl
Gültigkeit
30.04.2025 bis 28.04.2035
Effizienzklasse
G
Endenergiebedarf
221,40 kWh/(m²·a)
Weitere Energiedaten
Haustyp
Massivhaus
Energieträger
Öl
Heizungsart
Zentralheizung
Details
Objektbeschreibung
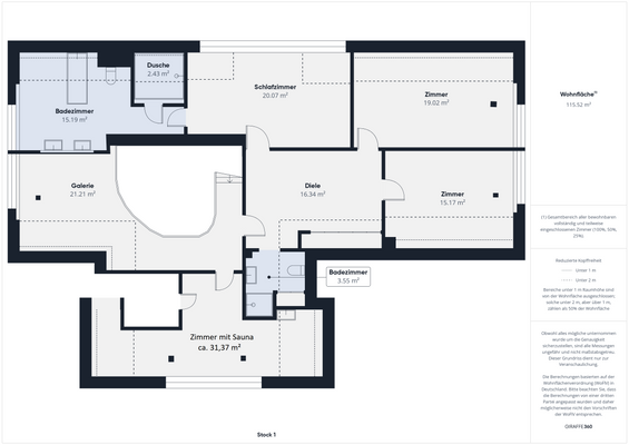
Dieses beeindruckende, freist. Einfamilienhaus mit Fledermausgaube vereint großzügiges Wohnen auf einem schön angelegten Grundstück und dem besonderen Charme einer liebevoll gepflegten Immobilie. Auf ca. 300 m² Wohnfläche bietet das Haus reichlich Platz für anspruchsvolles und individuelles Wohnen.
Bereits beim...
Ausstattung
Individuelle Ausstattungsmerkmale:
- Einbauküche
- Kühlraum
- Hauswirtschaftsraum
- Galerie
- 3 Bäder
- Sauna
- Kamin
- Wintergarten
- Terrasse und Garten mit Gartenteich
- Ölzentralheizung aus 1995
- Fußbodenheizung im gesamten Haus
- Fenster: Holz/Normalglas
-...
Weitere Informationen
Sonstiges
Alles aus einer Hand: Aus unserem Netzwerk heraus, können wir Sie auch bei der Suche nach der optimalen Baufinanzierung unterstützen - sprechen Sie uns einfach an.
VERBRAUCHERINFO
1. Maklerleistung ist der Nachweis der Gelegenheit zum Abschluss eines Vertrages bzw. Vermittlung eines Vertrages über eine...
Anbieter der Immobilie
Sparkasse Immobilien Bremen GmbH
An der Reeperbahn 2, 28217 Bremen

Online-ID: 2k9lc57
Referenznummer: 11143
Finde Angebote wie dieses
Hier geht es zu unserem Impressum, den Allgemeinen Geschäftsbedingungen, den Hinweisen zum Datenschutz und nutzungsbasierter Online-Werbung.