

Hartwig Kruse Immobilien GmbH
Herr Niklas Hagenah
047 ···
Nr. anzeigenPreise & Kosten
Kaution
9.900,00
Provision für Mieter
1 Monatsmieten inkl. MwSt.
Warum sehe ich diese Anzeige? – Du siehst diese Anzeige basierend auf Ihrer Navigation auf unserer Website und den Suchkriterien, die du verwendet hast.
Lage
Die angebotene Büro-/Gewerbefläche befindet sich in zentraler, bestens erreichbarer Lage von Drochtersen - direkt neben dem Rathaus, im Herzen des Kehdinger Landes. Die Gemeinde liegt an der Deutschen Fährstraße und nahe der Elbe und bietet eine naturnahe Umgebung mit Marsch- und Moorlandschaften sowie kurze Wege zum...
Büro-/Praxisfläche
Kategorie
Bürofläche
Baujahr
2014
Energie & Heizung
Warum sehe ich diese Anzeige? – Du siehst diese Anzeige basierend auf Ihrer Navigation auf unserer Website und den Suchkriterien, die du verwendet hast.
Weitere Energiedaten
Energieträger
Gas
Details
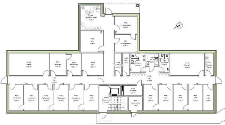
Objektbeschreibung
Diese hochwertig ausgestattete Büro- und Gewerbefläche befindet sich im Erdgeschoss eines modernen Wohn- und Geschäftshauses aus dem Baujahr 2014/2015. Sie überzeugt durch ihre klare Architektur, eine moderne Gebäudetechnik sowie eine durchdachte Raumaufteilung. Die großzügigen, lichtdurchfluteten Räume schaffen ein...
Preisinformation
17 Stellplätze
Weitere Informationen
Sonstiges
Rufen Sie uns an unter der Tel.-Nr. 04770-335 oder schreiben Sie uns eine E-Mail an: info@immo-kruse.de.
Stichworte
Stellplatz vorhanden, Nutzfläche: 471,36 m², Gesamtfläche: 471,36 m²
Sonstiges: Getrennte Damen- und Herren-WCs
Dokumente
Anbieter der Immobilie

Online-ID: 2k9qe5r
Referenznummer: 12487
Finde Angebote wie dieses
Hier geht es zu unserem Impressum, den Allgemeinen Geschäftsbedingungen, den Hinweisen zum Datenschutz und nutzungsbasierter Online-Werbung.