


1 / 24



1 / 24
Einfamilienhaus zum Kauf149000 €149.000 €1.064 €/m²5 Zimmer • 140 m² • 752 m² Grundstück
149000 €149.000 €
1.064 €/m²
5 Zimmer • 140 m² • 752 m² Grundstück
Mehr Herz als Hype - mit Substanz und wildem Garten
Achtung: Kein Mietkauf möglich.
Frisch modernisiertes Einfamilienhaus mit Gestaltungsspielraum - ein Zuhause mit Potenzial
In ruhiger Lage von Görzig bei Köthen steht dieses frisch modernisierte Einfamilienhaus mit Garten, Terrasse, Garage und Vollkeller - ein Zuhause mit Potenzial. Das freistehende Haus befindet sich am Ende einer Sackgasse - ohne Durchgangsverkehr, ohne direkte Nachbarn - und bietet somit ein ruhiges Wohnumfeld mit viel Privatsphäre.
Im Jahr 2024 wurde das Einfamilienhaus umfassend modernisiert und präsentiert sich in einem einladenden Zustand mit bereits umgesetzten Maßnahmen - und Raum für Ihre persönliche Note. Die Elektrik (Schalter, Steckdosen, Leitungen und Verteilung) wurde vollständig erneuert, sodass Sie sich auf einen zeitgemäßen und sicheren Standard verlassen können. Auch die Wände wurden frisch verputzt und in hellen, freundlichen Farbtönen gestrichen. Teilweise wurden Fenster erneuert - mit Fokus auf Energieeffizienz und modernes Wohnen. Die Terrassen- bzw. Balkontür ist mit einbruchhemmendem Glas und zusätzlichen Verriegelungen ausgestattet. Das Wohnzimmer im Obergeschoss verfügt bereits über elektrische Rollläden, während alle weiteren Räume für den elektrischen Antrieb vorbereitet sind.
Ein besonderes Merkmal: Die Fußböden befinden sich aktuell im Rohzustand. Damit haben Sie die Möglichkeit, Ihre Vorstellungen in Bezug auf Material, Farbe und Stil vollständig umzusetzen - ohne Rückbau oder Kompromisse.
Die Bausubstanz des Hauses ist solide. Der Keller ist trocken, die grundlegende Elektrik modernisiert und die Wände verputzt - die Basis stimmt. Aus unserer Sicht bietet das Haus eine gute Ausgangslage, insbesondere für Familien, die keinen Neubau suchen, sondern Wert auf eine ehrliche, substanzstarke Immobilie legen.
Der großzügige Eingangsbereich vermittelt schon beim Ankommen ein angenehmes Raumgefühl. Im Erdgeschoss verteilen sich drei gut geschnittene Zimmer, die individuell genutzt werden können - ob als Wohnzimmer, Schlafzimmer oder Arbeitsbereich. Die Küche ist funktional angelegt und wird durch einen praktischen Abstellraum ergänzt. Das große Bad bietet Platz für Ruhe und Entspannung. Vom Flur aus führt der Weg direkt in den Vollkeller, der zusätzlichen Raum für Vorräte, Hobbys oder Werkstatt bietet.
Eine schöne Holztreppe führt ins Obergeschoss, wo zwei weitere Zimmer auf neue Ideen warten - ideal als Kinderzimmer, Büro oder Rückzugsort. Eine Dachbodenluke eröffnet zusätzlichen Stauraum. Zudem bietet das Obergeschoss eine großzügige Dachfläche, die sich zur Realisierung einer weiteren Terrasse eignet.
Im Außenbereich lädt eine Terrasse zum Verweilen ein - sei es mit einem Frühstück in der Morgensonne oder einem entspannten Abend mit Freunden. Der Garten ist großzügig, aber aktuell noch wenig gepflegt. Er bietet viel Raum für eigene Ideen - von Blumenbeeten über eine Sitzecke bis hin zum Gemüsegarten. Die Garage ergänzt das Gesamtbild funktional.
Dieses Haus richtet sich an Menschen, die nicht einfach nur einziehen wollen, sondern Freude daran haben, etwas Eigenes zu gestalten. Die wichtigsten Maßnahmen wurden getroffen - jetzt sind Sie dran.
Bitte beachten Sie den virtuellen Rundgang, der zusätzlich zu den Fotos in der Anzeige verfügbar ist. Nutzen Sie bitte die weißen Kreise, um sich durch die Immobilie zu navigieren.
Unsere Fotos wurden mit einer professionellen Weitwinkelkamera aufgenommen, was die Räume etwas größer erscheinen lässt. Der 360°-Rundgang bietet eine realistischere Darstellung der Raumgrößen. Bitte beachten Sie auch die Grundrisse und die Flächenbeschreibung.
Virtuell besichtigen - persönlich begleitet
Gern laden wir Sie zu einer unverbindlichen Online-Besichtigung ein. In einem persönlichen Videogespräch begleiten wir Sie live durch den digitalen 360°-Rundgang der Immobilie. So erhalten Sie ganz bequem von zu Hause aus einen realistischen ersten Eindruck, können gezielt Fragen stellen und bereits vorab prüfen, ob eine Vor-Ort-Besichtigung für Sie überhaupt infrage kommt.
Diese geführte Online-Tour ist für viele Interessenten der ideale erste Schritt, um schnell und effizient festzustellen, ob das Objekt ihren Vorstellungen entspricht.
Für Anfragen und Terminabsprachen stehen wir Ihnen gern zur Verfügung. Wir freuen uns auf Ihre Anfrage und darauf, gemeinsam einen passenden Termin für Sie zu finden.
Frisch modernisiertes Einfamilienhaus mit Gestaltungsspielraum - ein Zuhause mit Potenzial
In ruhiger Lage von Görzig bei Köthen steht dieses frisch modernisierte Einfamilienhaus mit Garten, Terrasse, Garage und Vollkeller - ein Zuhause mit Potenzial. Das freistehende Haus befindet sich am Ende einer Sackgasse - ohne Durchgangsverkehr, ohne direkte Nachbarn - und bietet somit ein ruhiges Wohnumfeld mit viel Privatsphäre.
Im Jahr 2024 wurde das Einfamilienhaus umfassend modernisiert und präsentiert sich in einem einladenden Zustand mit bereits umgesetzten Maßnahmen - und Raum für Ihre persönliche Note. Die Elektrik (Schalter, Steckdosen, Leitungen und Verteilung) wurde vollständig erneuert, sodass Sie sich auf einen zeitgemäßen und sicheren Standard verlassen können. Auch die Wände wurden frisch verputzt und in hellen, freundlichen Farbtönen gestrichen. Teilweise wurden Fenster erneuert - mit Fokus auf Energieeffizienz und modernes Wohnen. Die Terrassen- bzw. Balkontür ist mit einbruchhemmendem Glas und zusätzlichen Verriegelungen ausgestattet. Das Wohnzimmer im Obergeschoss verfügt bereits über elektrische Rollläden, während alle weiteren Räume für den elektrischen Antrieb vorbereitet sind.
Ein besonderes Merkmal: Die Fußböden befinden sich aktuell im Rohzustand. Damit haben Sie die Möglichkeit, Ihre Vorstellungen in Bezug auf Material, Farbe und Stil vollständig umzusetzen - ohne Rückbau oder Kompromisse.
Die Bausubstanz des Hauses ist solide. Der Keller ist trocken, die grundlegende Elektrik modernisiert und die Wände verputzt - die Basis stimmt. Aus unserer Sicht bietet das Haus eine gute Ausgangslage, insbesondere für Familien, die keinen Neubau suchen, sondern Wert auf eine ehrliche, substanzstarke Immobilie legen.
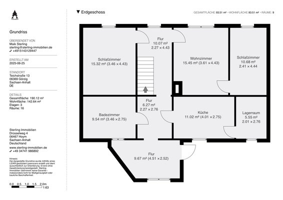
Der großzügige Eingangsbereich vermittelt schon beim Ankommen ein angenehmes Raumgefühl. Im Erdgeschoss verteilen sich drei gut geschnittene Zimmer, die individuell genutzt werden können - ob als Wohnzimmer, Schlafzimmer oder Arbeitsbereich. Die Küche ist funktional angelegt und wird durch einen praktischen Abstellraum ergänzt. Das große Bad bietet Platz für Ruhe und Entspannung. Vom Flur aus führt der Weg direkt in den Vollkeller, der zusätzlichen Raum für Vorräte, Hobbys oder Werkstatt bietet.
Eine schöne Holztreppe führt ins Obergeschoss, wo zwei weitere Zimmer auf neue Ideen warten - ideal als Kinderzimmer, Büro oder Rückzugsort. Eine Dachbodenluke eröffnet zusätzlichen Stauraum. Zudem bietet das Obergeschoss eine großzügige Dachfläche, die sich zur Realisierung einer weiteren Terrasse eignet.
Im Außenbereich lädt eine Terrasse zum Verweilen ein - sei es mit einem Frühstück in der Morgensonne oder einem entspannten Abend mit Freunden. Der Garten ist großzügig, aber aktuell noch wenig gepflegt. Er bietet viel Raum für eigene Ideen - von Blumenbeeten über eine Sitzecke bis hin zum Gemüsegarten. Die Garage ergänzt das Gesamtbild funktional.
Dieses Haus richtet sich an Menschen, die nicht einfach nur einziehen wollen, sondern Freude daran haben, etwas Eigenes zu gestalten. Die wichtigsten Maßnahmen wurden getroffen - jetzt sind Sie dran.
Bitte beachten Sie den virtuellen Rundgang, der zusätzlich zu den Fotos in der Anzeige verfügbar ist. Nutzen Sie bitte die weißen Kreise, um sich durch die Immobilie zu navigieren.
Unsere Fotos wurden mit einer professionellen Weitwinkelkamera aufgenommen, was die Räume etwas größer erscheinen lässt. Der 360°-Rundgang bietet eine realistischere Darstellung der Raumgrößen. Bitte beachten Sie auch die Grundrisse und die Flächenbeschreibung.
Virtuell besichtigen - persönlich begleitet
Gern laden wir Sie zu einer unverbindlichen Online-Besichtigung ein. In einem persönlichen Videogespräch begleiten wir Sie live durch den digitalen 360°-Rundgang der Immobilie. So erhalten Sie ganz bequem von zu Hause aus einen realistischen ersten Eindruck, können gezielt Fragen stellen und bereits vorab prüfen, ob eine Vor-Ort-Besichtigung für Sie überhaupt infrage kommt.
Diese geführte Online-Tour ist für viele Interessenten der ideale erste Schritt, um schnell und effizient festzustellen, ob das Objekt ihren Vorstellungen entspricht.
Für Anfragen und Terminabsprachen stehen wir Ihnen gern zur Verfügung. Wir freuen uns auf Ihre Anfrage und darauf, gemeinsam einen passenden Termin für Sie zu finden.
Merkmale
- 752 m² Grundstück
- Keller
- 2 Stellplätze: 2 Garagen
- Balkon
- Garten
. ca. 750 Quadratmeter Grundstücksgröße
. ca. 140 Quadratmeter Wohnfläche
. freistehendes Einfamilienhaus
. ruhige Lage am Ende einer Sackgasse
. kein Durchgangsverkehr, keine direkten Nachbarn
. Keller unter dem gesamten Hauptbereich (Vollkeller)
. Dach mit Dachpappe, großzügige Dachfläche im Obergeschoss - potenziell für zusätzliche Terrasse nutzbar
. Heizung: Öl-Zentralheizung, Baujahr 1997
. Elektrik 2024 vollständig erneuert (Leitungen, Schalter, Steckdosen, Verteilung)
. Wasserleitungen aus dem Jahr 1994
. Abwasserleitungen 2023 erneuert
. frisch verputzte Wände, in hellen Farbtönen gestrichen
. Fußböden im Rohzustand - zur individuellen Gestaltung
. teilweise Fenster erneuert, Holz, doppelt verglast
. Terrassen-/Balkontür mit einbruchhemmendem Glas und Verriegelung
. Wohnzimmer im Obergeschoss mit elektrischen Rollläden
. übrige Räume für elektrische Antriebe vorbereitet
. fünf Zimmer: drei im Erdgeschoss, zwei im Obergeschoss
. funktionale Küche mit angrenzendem Abstellraum
. großzügiges Badezimmer
. Holztreppe zum Obergeschoss
. Dachbodenluke für zusätzlichen Stauraum
. Terrasse im Erdgeschoss mit Zugang zum Garten
. Garten mit Entwicklungspotenzial - geeignet für Blumenbeete, Sitzbereich oder Gemüsegarten
. Garage mit zwei Stellplätzen und angeschlossener Werkstatt
Unter den Dokumenten, in dieser Anzeige, finden Sie weitere Unterlagen, hier Grundrisse, Flurkarte und Energieausweis.
. ca. 140 Quadratmeter Wohnfläche
. freistehendes Einfamilienhaus
. ruhige Lage am Ende einer Sackgasse
. kein Durchgangsverkehr, keine direkten Nachbarn
. Keller unter dem gesamten Hauptbereich (Vollkeller)
. Dach mit Dachpappe, großzügige Dachfläche im Obergeschoss - potenziell für zusätzliche Terrasse nutzbar
. Heizung: Öl-Zentralheizung, Baujahr 1997
. Elektrik 2024 vollständig erneuert (Leitungen, Schalter, Steckdosen, Verteilung)
. Wasserleitungen aus dem Jahr 1994
. Abwasserleitungen 2023 erneuert
. frisch verputzte Wände, in hellen Farbtönen gestrichen
. Fußböden im Rohzustand - zur individuellen Gestaltung
. teilweise Fenster erneuert, Holz, doppelt verglast
. Terrassen-/Balkontür mit einbruchhemmendem Glas und Verriegelung
. Wohnzimmer im Obergeschoss mit elektrischen Rollläden
. übrige Räume für elektrische Antriebe vorbereitet
. fünf Zimmer: drei im Erdgeschoss, zwei im Obergeschoss
. funktionale Küche mit angrenzendem Abstellraum
. großzügiges Badezimmer
. Holztreppe zum Obergeschoss
. Dachbodenluke für zusätzlichen Stauraum
. Terrasse im Erdgeschoss mit Zugang zum Garten
. Garten mit Entwicklungspotenzial - geeignet für Blumenbeete, Sitzbereich oder Gemüsegarten
. Garage mit zwei Stellplätzen und angeschlossener Werkstatt
Unter den Dokumenten, in dieser Anzeige, finden Sie weitere Unterlagen, hier Grundrisse, Flurkarte und Energieausweis.
Grundrisse
Grundrisse
1 / 3
Virtueller Rundgang
3D tour

Realisiere Dein Projekt
Bausubstanz und Energie
Energieausweis
G
- Baujahr1988
- HeizungsartZentralheizung
- EnergieträgerÖl
Preisdetails
Kaufpreis
149000 €149.000 €
1.064,29 €/m²
Provision für Käufer
Die Käufer-Provision beträgt 3,57 % vom Kaufpreis inkl. MwSt.
Weitere Preisinformationen
2 Garagenstellplätze
Geschätzte Gesamtkosten
164.749 €1
Kaufpreis
149.000 €
Kaufnebenkosten
15.749 €
2Notarkosten (1,5%)
2.235 €
Grunderwerbsteuer (5%)
7.450 €
Provision für Käufer (3,57%)
5.319 €
Grundbucheintrag (0,5%)
745 €
1Der angezeigte Wert ist eine automatisch berechnete Schätzung von immowelt.
2Bei den Angaben handelt es sich um ortsübliche Werte. Individuelle Kosten können abweichen.
Lage

Teichstraße 13, Görzig (06369)
Das Einfamilienhaus befindet sich in einem ruhigen Wohngebiet im Ortsteil Görzig, einem Teil der Stadt Südliches Anhalt im Landkreis Anhalt-Bitterfeld. Die Umgebung ist geprägt von einer lockeren Wohnbebauung mit Ein- und Zweifamilienhäusern, Gärten und viel Grün. Die Straße, in der das Haus liegt, ist wenig befahren und bietet eine angenehme Nachbarschaftsatmosphäre - ideal für Familien, Ruhesuchende oder Menschen, die dem Trubel der Stadt entkommen möchten.
Einkaufsmöglichkeiten, Schulen, Kindergärten und medizinische Versorgung sind in den umliegenden Ortschaften sowie im nahegelegenen Köthen oder in Sandersdorf-Brehna gut erreichbar. Die Anbindung an das regionale Verkehrsnetz ist günstig: Über die nahegelegene B183 und B6 erreicht man zügig die umliegenden Städte sowie die Autobahn A9 Richtung Leipzig oder Berlin.
Wer gerne in der Natur unterwegs ist, findet in der Umgebung zahlreiche Felder, kleine Wälder und Seen, die zu Spaziergängen, Fahrradtouren oder einfach zum Abschalten einladen. Görzig selbst bietet eine ruhige, dörfliche Lebensqualität mit dem Vorteil guter Erreichbarkeit städtischer Infrastruktur.
Einkaufsmöglichkeiten, Schulen, Kindergärten und medizinische Versorgung sind in den umliegenden Ortschaften sowie im nahegelegenen Köthen oder in Sandersdorf-Brehna gut erreichbar. Die Anbindung an das regionale Verkehrsnetz ist günstig: Über die nahegelegene B183 und B6 erreicht man zügig die umliegenden Städte sowie die Autobahn A9 Richtung Leipzig oder Berlin.
Wer gerne in der Natur unterwegs ist, findet in der Umgebung zahlreiche Felder, kleine Wälder und Seen, die zu Spaziergängen, Fahrradtouren oder einfach zum Abschalten einladen. Görzig selbst bietet eine ruhige, dörfliche Lebensqualität mit dem Vorteil guter Erreichbarkeit städtischer Infrastruktur.
Weitere Informationen
Sonstiges
Alle Daten in diesem Exposé beruhen auf Angaben des Eigentümers der Immobilie. Die Angaben zum Objekt sind von uns, Sterling-Immobilien.de, mit großer Sorgfalt zusammengestellt worden. Wir übernehmen keine Haftung für die Angaben des Angebotes, welche uns der Verkäufer/Anbieter übermittelt hat. Irrtümer bleiben vorbehalten.
Der Energieausweis liegt uns vor und wird von uns unaufgefordert zur Besichtigung vorgelegt. Sie finden diesen ebenso unter den Dokumenten dieser Anzeige.
Die Provision ist verdient und fällig mit notarieller Beurkundung. Der Immobilienmakler hat einen provisionspflichtigen Maklervertrag in gleicher Höhe mit dem Verkäufer abgeschlossen. Grunderwerbsteuer (5 %), Notar- und Grundbuchkosten sind vom Käufer zu tragen.
Bitte beachten Sie, dass die gelieferten Grundrisse rein für die visuelle Vorstellung sind und nicht zu 100 % genau. Stichworte Garage vorhanden, Anzahl der Badezimmer: 1, Anzahl Balkone: 1, Bundesland: Sachsen-Anhalt, 2 Etagen, modernisiert: 2024
Der Energieausweis liegt uns vor und wird von uns unaufgefordert zur Besichtigung vorgelegt. Sie finden diesen ebenso unter den Dokumenten dieser Anzeige.
Die Provision ist verdient und fällig mit notarieller Beurkundung. Der Immobilienmakler hat einen provisionspflichtigen Maklervertrag in gleicher Höhe mit dem Verkäufer abgeschlossen. Grunderwerbsteuer (5 %), Notar- und Grundbuchkosten sind vom Käufer zu tragen.
Bitte beachten Sie, dass die gelieferten Grundrisse rein für die visuelle Vorstellung sind und nicht zu 100 % genau. Stichworte Garage vorhanden, Anzahl der Badezimmer: 1, Anzahl Balkone: 1, Bundesland: Sachsen-Anhalt, 2 Etagen, modernisiert: 2024
Weitere Services
Lust auf eine Besichtigung?
Eine Frage zur Immobilie?
Über den Anbieter
Weitere Unterlagen
Online-ID: 2k9yt5m
Referenznummer: SI-912


Sterling Immobilien
Wie zufrieden bist du mit dieser Seite (nicht mit der Immobilie selbst)?