

TEKCE Real Estate
Herr Özkan Tekçe
+34 ···
Nr. anzeigenPreise & Kosten
Provision für Käufer
Bitte beachte, das Angebot kann bei Vertragsabschluss die Zahlung einer Provision beinhalten. Weitere Informationen erhältst Du vom Anbieter.
Die Wohnung
Kategorie
Apartment
Wohnungslage
42. Geschoss
Bezug
TEKCE Real Estate
Wohnanlage
Details
Objektbeschreibung
Kurzbeschreibung
Erleben Sie Komfort, Stil und Flexibilität in komplett möblierten Wohnungen in JVC in der Nähe der Circle Mall - mit erstklassigen Annehmlichkeiten und einem 2-Jahres-Plan nach der Übergabe.
Objekt
Möblierte Wohnungen mit Zahlungsplan nach Übergabe in JVC Dubai
Jumeirah Village Circle (JVC)...
Weitere Informationen
Stichworte
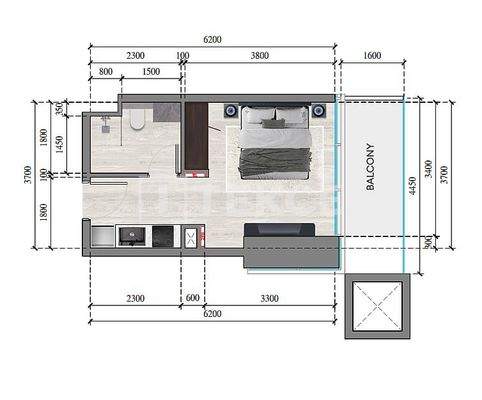
Carport vorhanden, Stellplatz vorhanden, Nutzfläche: 70,00 m², Ladenfläche: 70,00 m², Anzahl der Schlafzimmer: 1, Anzahl der Badezimmer: 2, Anzahl der Wohn-Schlafzimmer: 1, Bundesland: Jumeirah Village Circle, 63 Etagen
Anbieter der Immobilie
TEKCE Real Estate
C/El Montículo 8, Benalmádena, 29631 MÁLAGA

Online-ID: 2ka4h5p
Referenznummer: DXB-00260-1-MiddleFloor
Finde Angebote wie dieses
Hier geht es zu unserem Impressum, den Allgemeinen Geschäftsbedingungen, den Hinweisen zum Datenschutz und nutzungsbasierter Online-Werbung.