
Immobilien Sterk GmbH & Co. KG
Herr Marc-Ernst Oberscheid
004 ···
Nr. anzeigenPreise & Kosten
Provision für Käufer
3,57 % inkl. 19% Mwst.
Lage
Bad Wurzach liegt im Landkreis Ravensburg eingebettet zwischen dem Allgäu und Oberschwaben. Die Stadt zählt ungefähr 14.600 Einwohner und ist bekannt als ältestes Moorheilbad mit eigener Thermalquelle und erfolgreichem Einzelhandel mit überregionaler Ausstrahlung. Bad Wurzach überzeugt mit einzigartigem Naturraum - dem...
Das Renditeobjekt
Kategorie
Wohn- und Geschäftshaus
Baujahr
1971
Energie & Heizung
Warum sehe ich diese Anzeige? – Du siehst diese Anzeige basierend auf Ihrer Navigation auf unserer Website und den Suchkriterien, die du verwendet hast.
Energieausweistyp
Verbrauchsausweis
Gebäudetyp
Wohngebäude
Baujahr laut Energieausweis
1971
Wesentliche Energieträger
GAS
Gültigkeit
bis 24.01.2026
Effizienzklasse
F
Endenergieverbrauch
167,20 kWh/(m²·a)
Weitere Energiedaten
Energieträger
Gas
Heizungsart
Zentralheizung
Details
Objektbeschreibung
Das Wohn- und Geschäftshaus befindet sich in der Herrenstrasse von Bad Wurzach - im Herzen der Stadt und in direkter Nachbarschaft zum großen Modehaus Michelberger und weiteren Einzelhandelsgeschäften. Fussgängerfreundliche und verkaufsstarke Lage.
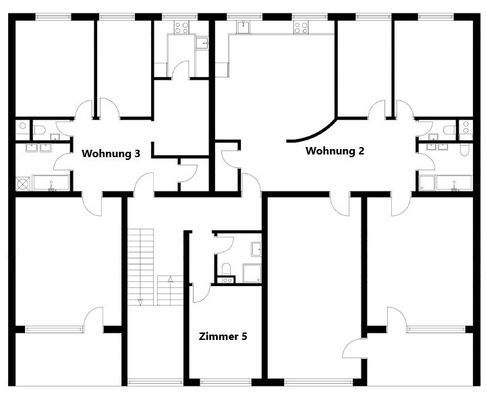
Im ständig sanierten Haus befinden sich außer der Gewerbeeinheit im EG...
Ausstattung
* Wohnfläche 491 m²
* Gewerbefläche 209 m²
* Allgemeinfläche 55 m²
* Gesamtmietfläche 755 m²
* Grundstücksfläche 479 m²
* 5 Außenstellplätze
* 7 Wohneinheiten
* 19 Zimmer
* 1 Gewerbeeinheit
* Voll vermietet - neuer 10-Jahres-Mietvertrag für die Gewerbeeinheit
* Ständig saniertes Haus - sehr...
Preisinformation
5 Stellplätze
Ist-Mieteinnahmen pro Jahr: 61.620,00 EUR
Weitere Informationen
Stichworte
Wohnfläche: 491,00 m², vermietbare Fläche: 755,00 m², modernisiert
Anbieter der Immobilie
Online-ID: 2ka7u5s
Referenznummer: 4762
Finde Angebote wie dieses
Hier geht es zu unserem Impressum, den Allgemeinen Geschäftsbedingungen, den Hinweisen zum Datenschutz und nutzungsbasierter Online-Werbung.