
Goldschild Immobilien GmbH
Herr Kristjan Lekocaj
004 ···
Nr. anzeigenPreise & Kosten
Provision für Käufer
3,57 % vom Kaufpreis inkl. gesetzl. MwSt.
Lage
Die Immobilie befindet sich in einer ruhigen und gewachsenen Wohnlage mit dörflichem Charme und guter Infrastruktur. Hochdorf bietet eine familienfreundliche Umgebung mit Kindergärten, Schulen, Einkaufsmöglichkeiten und Ärzten in direkter Nähe. Die Anbindung an die B10, B297 sowie die Autobahn A8 ist hervorragend, Stuttgart...
Das Haus
Kategorie
Doppelhaushälfte
Baujahr
2008
Energie & Heizung
Warum sehe ich diese Anzeige? – Du siehst diese Anzeige basierend auf Ihrer Navigation auf unserer Website und den Suchkriterien, die du verwendet hast.
Energieausweistyp
Verbrauchsausweis
Gebäudetyp
Wohngebäude
Baujahr laut Energieausweis
2008
Wesentliche Energieträger
GAS
Gültigkeit
bis 22.07.2035
Effizienzklasse
B
Endenergieverbrauch
59,20 kWh/(m²·a)
Weitere Energiedaten
Energieträger
Gas, Solar
Heizungsart
offener Kamin, Zentralheizung
Details
Objektbeschreibung
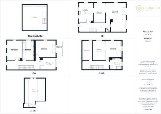
Dieses außergewöhnliche, hochwertig kernsanierte Bauernhaus aus dem Jahr 1888 bietet auf ca. 240 m² Wohnfläche verteilt auf vier Ebenen ein ganz besonderes Zuhause. Die zum Verkauf stehende Doppelhaushälften-Einheit mit eigenem Grundstücksanteil von ca. 282 m², Terrasse, Garten, Gewölbekeller und zwei Carports verbindet...
Ausstattung
Besondere Highlights
* Kombination aus historischer Bausubstanz & moderner Technik
* Sehr großzügige Wohnfläche mit flexibler Raumaufteilung
* Technisch auf Top-Niveau: Glasfaser, Wärmerückgewinnung, Solarthermie
* Beeindruckender Natur-Gewölbekeller
* Zwei Carports inklusive
* Charmanter Garten &...
Preisinformation
2 Carportplätze
Weitere Informationen
Sonstiges
Da wir uns bei allen Angaben auf die Informationen Dritter stützen müssen, können wir keine Gewähr für deren Richtigkeit und Vollständigkeit übernehmen. Bitte haben Sie Verständnis dafür, dass wir nur Anfragen mit vollständiger Adressangabe und erreichbarer Handynummer bearbeiten können. Nachdem Ihre Anfrage per...
Anbieter der Immobilie
Online-ID: 2kaqt5u
Referenznummer: GI-KL-344
Finde Angebote wie dieses
Hier geht es zu unserem Impressum, den Allgemeinen Geschäftsbedingungen, den Hinweisen zum Datenschutz und nutzungsbasierter Online-Werbung.