
UPR Immoline GmbH
Firma Team Vertrieb
071 ···
Nr. anzeigenPreise & Kosten
Provision für Käufer
Bitte beachte, das Angebot kann bei Vertragsabschluss die Zahlung einer Provision beinhalten. Weitere Informationen erhältst Du vom Anbieter.
Lage
LAGE
Die Stadt Bönnigheim liegt im Norden des Landkreises Ludwigsburg in der Region Stuttgart und gehört zur
europäischen Metropolregion Stuttgart. Umrahmt von sanften Hügeln und Weinbergen, liegt Bönnigheim am Rande des Strombergs. In wenigen Autominuten lassen sich die Bundesstraße B27 sowie die Autobahn A81 erreichen...
Das Haus
Kategorie
Reihenendhaus
Baujahr
2026
Energie & Heizung
Warum sehe ich diese Anzeige? – Du siehst diese Anzeige basierend auf Ihrer Navigation auf unserer Website und den Suchkriterien, die du verwendet hast.
Weitere Energiedaten
Heizungsart
Fußbodenheizung, Luft-/Wasser-Wärmepumpe
Details
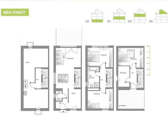
Objektbeschreibung
Das Reihenhaus bietet bereits im Basishauspreis eine vollständige, massiv gebaute Unterkellerung mit wärmegedämmten Räumen, Technikanschlüssen und optionaler Raumaufteilung. Im Erdgeschoss erwartet Sie ein großzügiger Wohn-Essbereich mit offener Küche, viel Tageslicht, Gäste-WC und einem freundlichen Eingangsbereich. Das...
Ausstattung
- Fußbodenheizung mit optionaler Kühlfunktion
- bewährter Schallschutz
- massive Bauweise
- nachhaltige Baumaterialien
- Abluftanlage
- energiesparende Luft-Wasser-Wärmepumpe
- Kunststofffenster mit 3-fach-Wärmedämmverglasung
- optional elektrisch betriebene Rollläden
- optional...
Preisinformation
1 Carportplatz
1 Stellplatz
Weitere Informationen
Sonstiges
Provisionsfrei direkt vom Bauträger.
Die veröffentlichen Bilder und Illustrationen / Visualisierungen dienen lediglich zur besseren Vorstellung und können Sonderausstattungen zeigen, es handelt sich hierbei um unverbindliches Anschauungsmaterial.
Weitere interessante Neubauprojekte auf unserer...
Anbieter der Immobilie
UPR Immoline GmbH
Wilhelm-Maybach-Straße 8, 74357 Bönnigheim
Online-ID: 2kasg5n
Referenznummer: BURG_DHH_1
Finde Angebote wie dieses
Hier geht es zu unserem Impressum, den Allgemeinen Geschäftsbedingungen, den Hinweisen zum Datenschutz und nutzungsbasierter Online-Werbung.