
Golden Home Real Ltd & Co KG
Lutz Rosenkranz
004 ···
Nr. anzeigenPreise & Kosten
Provision für Käufer
3.57% inkl. 19.00% MwSt.
Lage
Die Wohnung befindet sich in Billstedt, dem östlichsten Stadtteil des Bezirks Hamburg-Mitte. Die Anbindung an den ÖPNV ist optimal, zur U-Bahn Haltestelle Legienstraße braucht man zu Fuß nur zwei Minuten. Das Billstedt Center ist ebenfalls bequem fußläufig erreichbar, hier findet man nicht nur alles für den täglichen Gebrauch...
Die Wohnung
Wohnungslage
8. Geschoss
Derzeitige Nutzung
vermietet
Wohnanlage
Energie & Heizung
Warum sehe ich diese Anzeige? – Du siehst diese Anzeige basierend auf Ihrer Navigation auf unserer Website und den Suchkriterien, die du verwendet hast.
Energieausweistyp
Verbrauchsausweis
Gebäudetyp
Wohngebäude
Baujahr laut Energieausweis
2004
Wesentliche Energieträger
Gas
Gültigkeit
25.02.2019 bis 24.02.2029
Effizienzklasse
C
Endenergieverbrauch
98,70 kWh/(m²·a)
Details
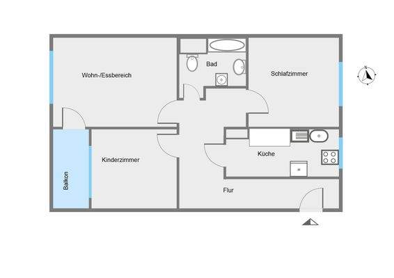
Objektbeschreibung
Diese schöne Eigentumswohnung begeistert mit ihrem gelungenen Grundriss: ein großzügiger Wohn-/Essbereich und zwei weitere, fast gleich große Räume eröffnen unterschiedliche Nutzungsmöglichkeiten für kleine Familien oder Paare. Die separate Küche, das innenliegende Bad und der Balkon mit Ausrichtung nach Westen runden das...
Weitere Informationen
Stichworte
Anzahl der Schlafzimmer: 1, Anzahl der Badezimmer: 1
Anbieter der Immobilie
Golden Home Real Ltd & Co KG
Unter den Linden 10, 10117 Berlin
Online-ID: 2kau55j
Referenznummer: 01JYK2ZECJ4K3PYQQFRCPW9E80
Finde Angebote wie dieses
Hier geht es zu unserem Impressum, den Allgemeinen Geschäftsbedingungen, den Hinweisen zum Datenschutz und nutzungsbasierter Online-Werbung.